Stylish modern mansion with a beautiful balcony

218 m² total area / 2347 ft² 2 floors 4 bedrooms 4 bathrooms
Stylish modern mansion with a beautiful balcony
Click to view

Description

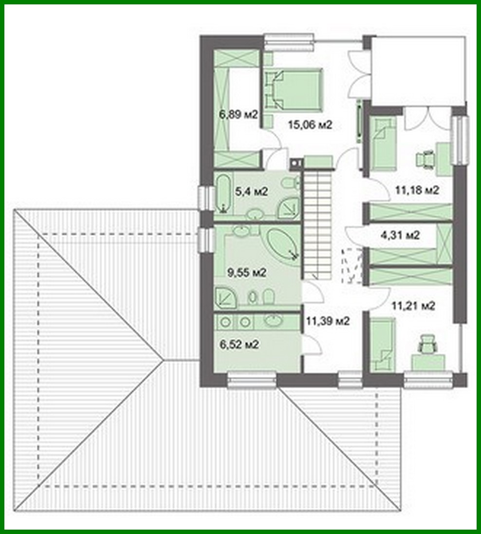
Stylish modern mansion with a beautiful balcony Number of floors: 2 Total area: 218.30 m2 Living Area: 140.91 m2 House height: 8.92 m Ceiling Height: 2.80 m Roof Angle: 25 ° Number of bedrooms: 4 Number of bathrooms: 4 Garage: Two-car garage Minimum plot size (length): 24.40 m Minimum plot size (width): 23.70 m Materials: Walls: aerated concrete, ceramic blocks Overlap: monolithic overlap Roofing: ceramic tile, metal tile, cement-sand tile Foundation: monolithic tape

Interested in this plan?

Contact us to get full blueprints, construction estimate, or adapt this plan to your plot and needs.

Request more information

Visualization gallery