Prominent 3-bedroom house

140 m² total area / 1507 ft² 1 floor 3 bedrooms 2 bathrooms
Prominent 3-bedroom house
Click to view

Description

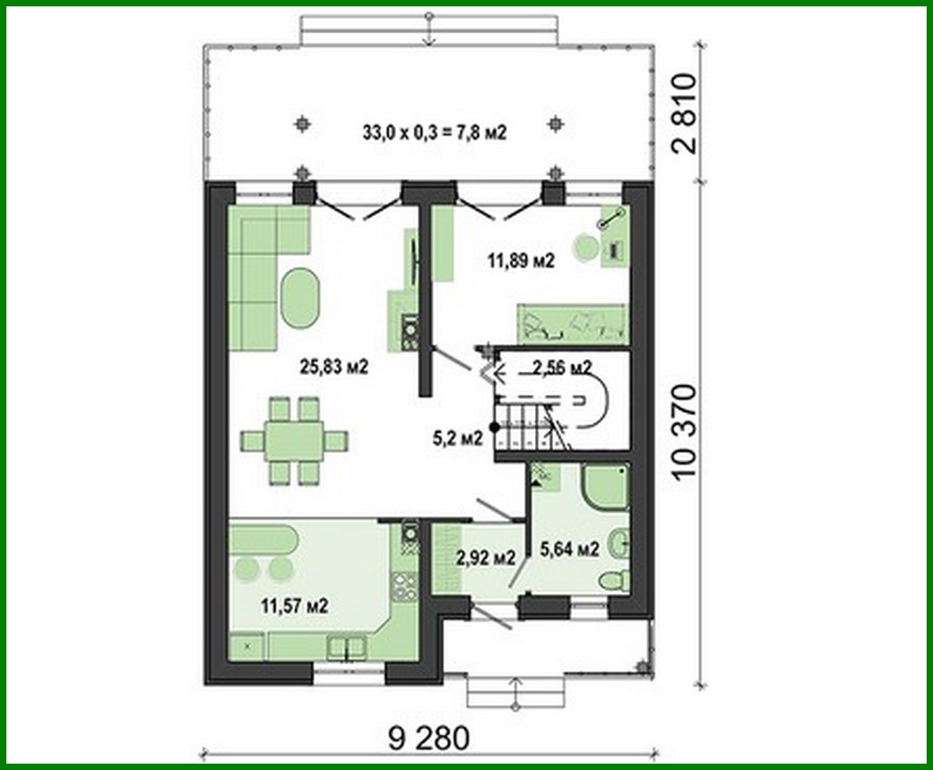
Prominent 3-bedroom house Number of floors: 2 Total area: 140.07 m2 Living Area: 84.48 m2 House height: 9.32 m Ceiling Height: 2.80 m Roof Angle: 45 ° Roof area: 180.00 m2 Cubic capacity: 572.00 m3 Number of bedrooms: 3 Number of bathrooms: 2 Minimum plot size (length): 18.40 m Minimum plot size (width): 15.40 m Built-up area: 85.2 m2 Materials: Walls: aerated concrete, ceramic blocks Overlap: monolithic overlap Roofing: ceramic tile, metal tile, cement-sand tile Foundation: monolithic tape

Interested in this plan?

Contact us to get full blueprints, construction estimate, or adapt this plan to your plot and needs.

Request more information

Visualization gallery