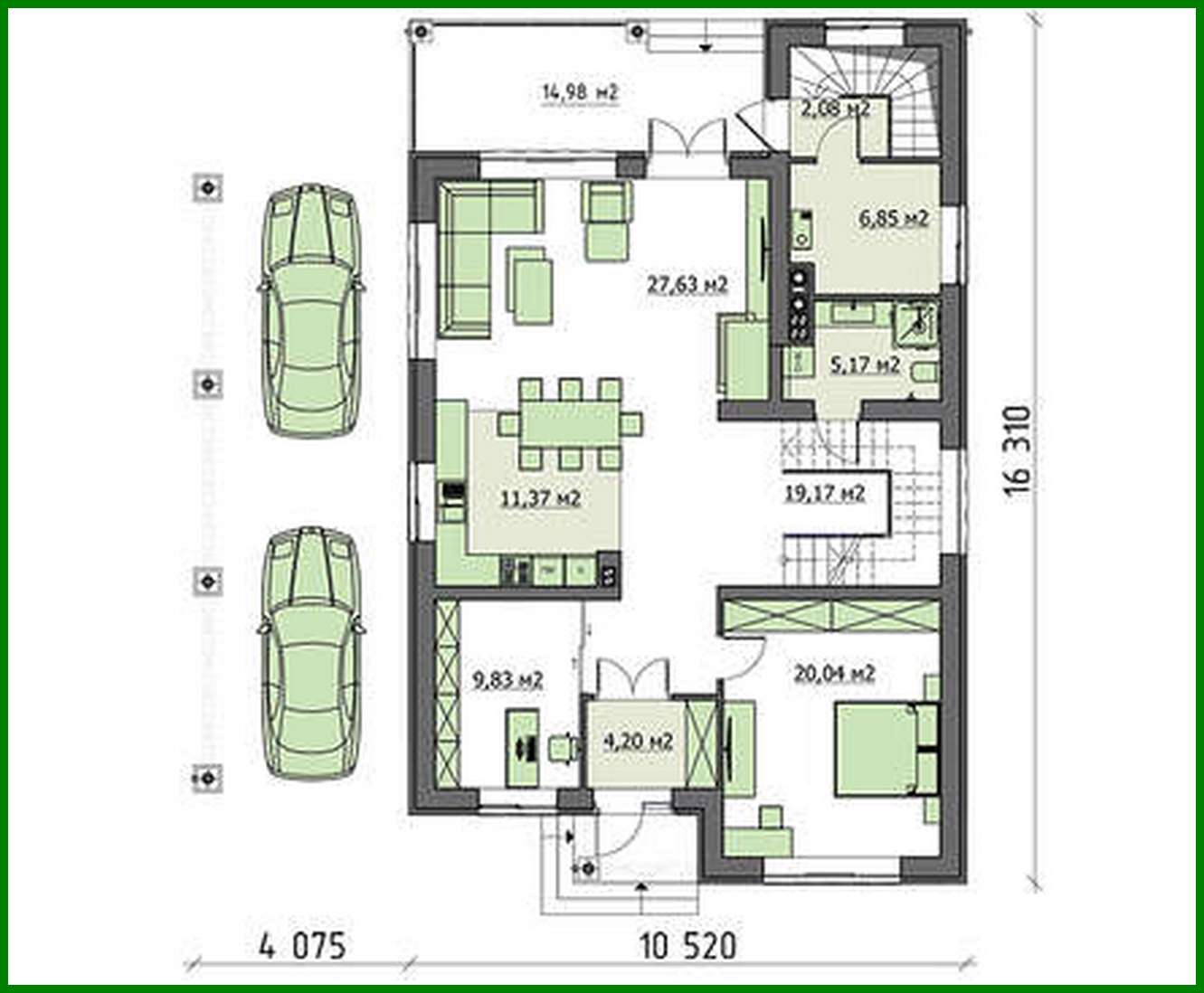
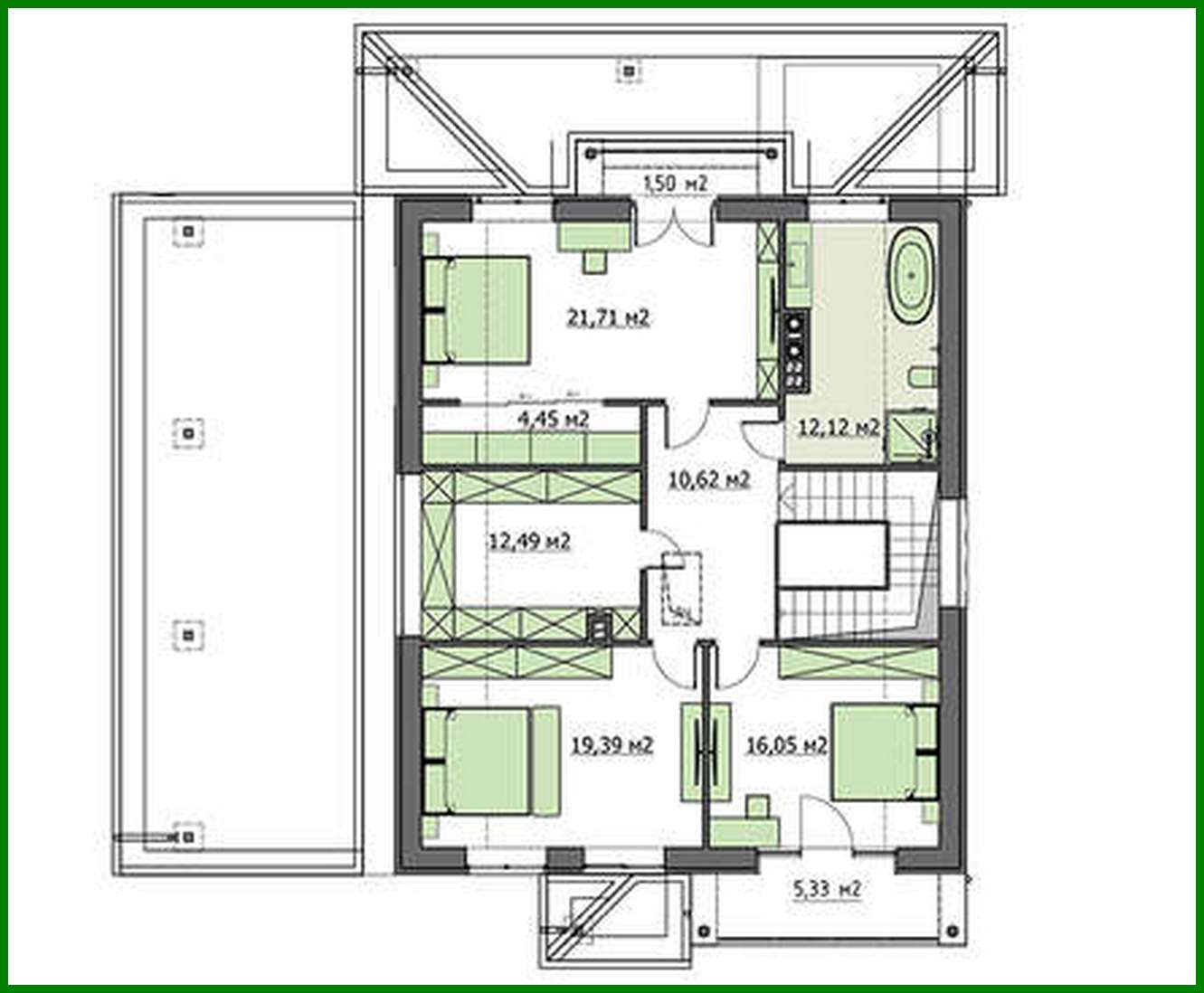
Comfortable attic house with a spacious terrace

226 m² total area / 2433 ft² 2 floors 4 bedrooms 2 bathrooms
Comfortable attic house with a spacious terrace
Click to view

Description

Comfortable attic house with a spacious terrace Number of floors: 2 Total area: 225.59 m2 Living Area: 114.65 m2 House height: 9.05 m Ceiling Height: 2.80 m Roof Angle: 35 ° Roof area: 314.00 m2 Number of bedrooms: 4 Number of bathrooms: 2 Built-up area: 219.49 m2 Materials: Walls: aerated concrete blocks Overlap: monolithic overlap Roofing: metal tile, ceramic tile, bitumen Foundation: monolithic tape

Interested in this plan?

Contact us to get full blueprints, construction estimate, or adapt this plan to your plot and needs.

Request more information

Visualization gallery