Compact cottage with an attic 80 m²

93 m² total area / 1001 ft² 1 floor 2 bedrooms 2 bathrooms
Compact cottage with an attic 80 m²
Click to view

Description

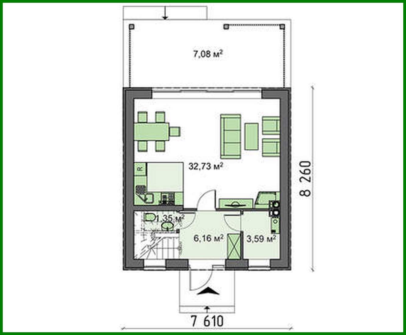
Compact cottage with an attic 80 m² Number of floors: 2 Total area: 92.84 m2 Living Area: 24.56 m2 House height: 8.01 m Ceiling Height: 2.80 m Roof Angle: 45 ° Roof Area: 146.59 m2 Cubic capacity: 193.00 m3 Number of bedrooms: 2 Number of bathrooms: 2 Minimum plot size (length): 15.70 m Minimum plot size (width): 15.20 m Built-up area: 93.6 m2 Materials: Walls: aerated concrete Overlap: monolithic overlap Roofing: ceramic tile, metal tile, cement-sand tile Foundation: monolithic tape

Interested in this plan?

Contact us to get full blueprints, construction estimate, or adapt this plan to your plot and needs.

Request more information

Visualization gallery