House project with a corner window in the kitchen

120 m² total area / 1292 ft² 1 floor 3 bedrooms 2 bathrooms
House project with a corner window in the kitchen
Click to view

Description

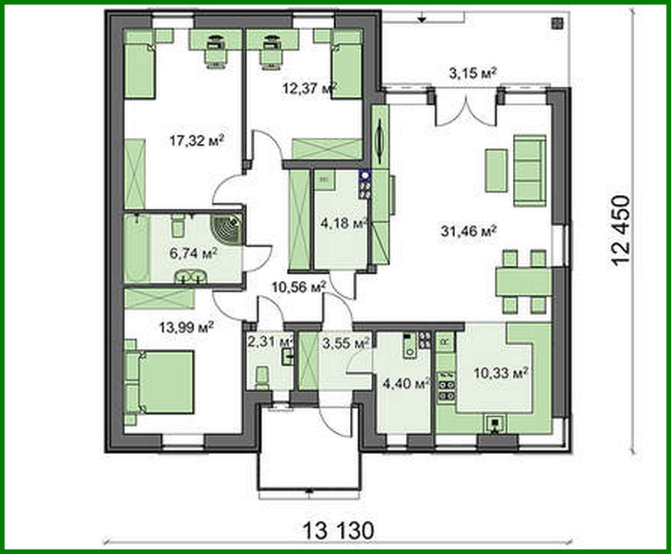
House project with a corner window in the kitchen Number of floors: 1 Total area: 120.36 m2 Living Area: 75.14 m2 House height: 6.55 m Ceiling Height: 2.80 m Roof Angle: 25 ° / 35 ° ° Roof area: 229.23 m2 Cubic capacity: 325.80 m3 Number of bedrooms: 3 Number of bathrooms: 2 Minimum plot size (length): 19.88 m Minimum plot size (width): 19.48 m Materials: Walls: aerated concrete blocks Ceiling: on wooden beams Roofing: metal tile, ceramic tile, bitumen Foundation: monolithic tape

Interested in this plan?

Contact us to get full blueprints, construction estimate, or adapt this plan to your plot and needs.

Request more information

Visualization gallery