One story house

124 m² total area / 1335 ft² 1 floor 3 bedrooms 3 bathrooms
One story house
Click to view

Description

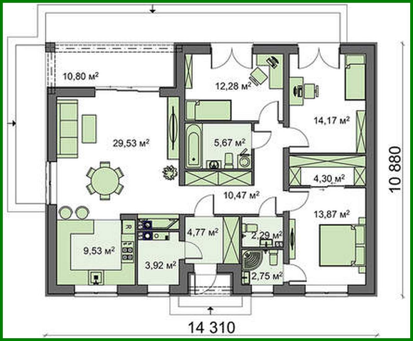
One story house Number of floors: 1 Total area: 124.35 m2 Living Area: 69.85 m2 House height: 5.84 m Ceiling Height: 2.80 m Roof Angle: 22 ° ° Roof area: 347.00 m2 Cubature: 298.40 m3 Number of bedrooms: 3 Number of bathrooms: 3 Minimum plot size (length): 18.00 m Minimum plot size (width): 20.00 m Built-up area: 193.72 m2 Materials: Walls: aerated concrete blocks Ceiling: on wooden beams Roofing: metal tile, ceramic tile, bitumen Foundation: monolithic tape

Interested in this plan?

Contact us to get full blueprints, construction estimate, or adapt this plan to your plot and needs.

Request more information

Visualization gallery