Chic villa design in a classic style

581 m² total area / 6254 ft² 2 floors 6 bedrooms 1 bathroom
Chic villa design in a classic style
Click to view

Description

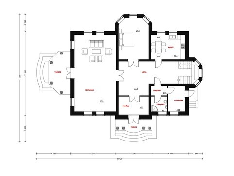
Chic villa design in a classic style Article 4M860 Number of floors: 2 Total area: 581.00 m2 Number of bedrooms: 6 Number of bathrooms: 1 Minimum plot size (length): 23.00 m Minimum plot size (width): 28.00 m Materials: Walls: Aerated concrete blocks, brick Overlap: monolithic overlap Roofing: ceramic tiles Foundation: monolithic tape

Interested in this plan?

Contact us to get full blueprints, construction estimate, or adapt this plan to your plot and needs.

Request more information

Visualization gallery