Beautiful barnhouse style house

265 m² total area / 2852 ft² 1 floor 4 bedrooms 3 bathrooms
Beautiful barnhouse style house
Click to view

Description

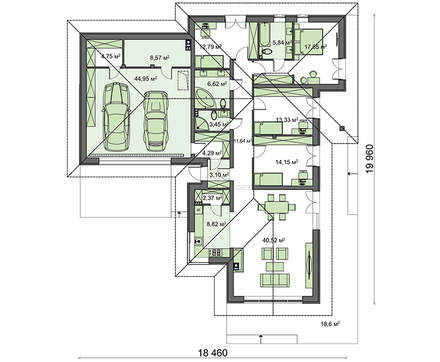
Beautiful barnhouse style house Number of floors: 1 Total area: 264.83 m2 Living Area: 98.44 m2 House height: 6.49 m Ceiling Height: 2.80 m Roof Angle: 30 ° ° Roof Area: 376.64 m2 Number of bedrooms: 4 Number of bathrooms: 3 Garage: Two-car garage Minimum plot size (length): 27.00 m Minimum plot size (width): 25.00 m Built-up area: 349.83 m2 Materials: Walls: aerated concrete blocks Ceiling: on wooden beams Roofing: metal tile, ceramic tile, bitumen Foundation: monolithic slab

Interested in this plan?

Contact us to get full blueprints, construction estimate, or adapt this plan to your plot and needs.

Request more information

Visualization gallery