Small house with 2 floors

128 m² total area / 1378 ft² 1 floor 1 bedroom 1 bathroom
Small house with 2 floors
Click to view

Description

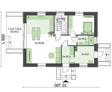
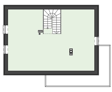
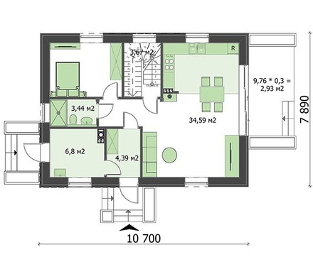
Small house with 2 floors Number of floors: 2 Total area: 128.10 m2 Living Area: 23.38 m2 House height: 7.77 m Ceiling Height: 2.80 m Roof Angle: 40 ° Roof area: 140.69 m2 Cubic capacity: 503.40 m3 Number of bedrooms: 1 Number of bathrooms: 1 Minimum plot size (length): 19.00 m Minimum plot size (width): 15.00 m Built-up area: 83.4 m2 Materials: Walls: aerated concrete blocks Ceiling: on wooden beams Roofing: ceramic tile, metal tile, cement-sand tile Foundation: monolithic tape

Interested in this plan?

Contact us to get full blueprints, construction estimate, or adapt this plan to your plot and needs.

Request more information

Visualization gallery