House project with a garage, a beautiful attic and a side terrace

133 m² total area / 1432 ft² 1 floor 3 bedrooms 2 bathrooms
House project with a garage, a beautiful attic and a side terrace
Click to view

Description

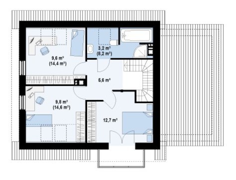
House project with a garage, a beautiful attic and a side terrace Number of floors: 2 Total area: 133.30 m2 Living Area: 96.40 m2 House height: 7.42 m Ceiling Height: 2.80 m Roof Angle: 38 ° Roof Area: 165.26 m2 Cubic capacity: 326.10 m3 Number of bedrooms: 3 Number of bathrooms: 2 Garage: Garage for one car Minimum plot size (length): 20.03 m Minimum plot size (width): 16.35 m Built-up area: 99.7 m2 Materials: Walls: aerated concrete, ceramic blocks Overlap: monolithic overlap Roofing: metal tile, ceramic tile, bitumen Foundation: monolithic tape

Interested in this plan?

Contact us to get full blueprints, construction estimate, or adapt this plan to your plot and needs.

Request more information

Visualization gallery