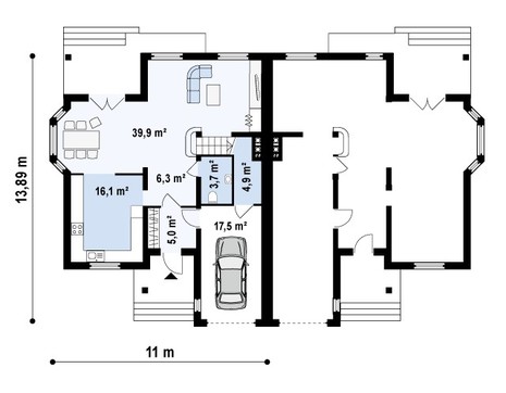
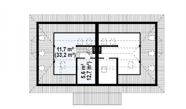
The project of a cottage for two families with a garage and an attic

223 m² total area / 2400 ft² 2 floors 4 bedrooms 2 bathrooms
The project of a cottage for two families with a garage and an attic
Click to view

Description

The project of a cottage for two families with a garage and an attic Number of floors: 3 Total area: 223.00 m2 Living Area: 177.00 m2 House height: 9.00 m Ceiling Height: 2.80 m Roof Angle: 45 ° / 38 ° Roof area: 206.00 m2 Cubature: 550.00 m3 Number of bedrooms: 4 Number of bathrooms: 2 Garage: Garage for one car Minimum plot size (length): 15.00 m Minimum plot size (width): 21.00 m Materials: Walls: aerated concrete, ceramic blocks Overlap: monolithic overlap Roofing: ceramic tile, metal tile, cement-sand tile Foundation: monolithic tape band

Interested in this plan?

Contact us to get full blueprints, construction estimate, or adapt this plan to your plot and needs.

Request more information

Visualization gallery