6-Bedroom Two-Storey Cottage Project

153 m² total area / 1647 ft² 1 floor 6 bedrooms 2 bathrooms
6-Bedroom Two-Storey Cottage Project
Click to view

Description

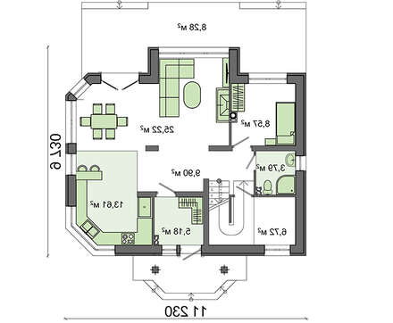
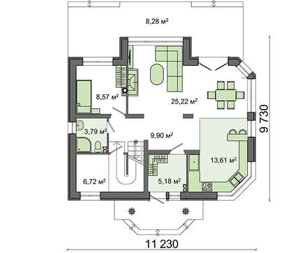
6-Bedroom Two-Storey Cottage Project Number of floors: 2 Total area: 153.07 m2 Living Area: 86.40 m2 House height: 8.51 m Ceiling Height: 2.80 m Roof Angle: 40 ° Roof area: 178.00 m2 Number of bedrooms: 6 Number of bathrooms: 2 Minimum plot size (length): 19.00 m Minimum plot size (width): 18.00 m Built-up area: 138.25 m2 Materials: Walls: aerated concrete blocks Overlap: monolithic overlap Roofing: metal Foundation: monolithic slab

Interested in this plan?

Contact us to get full blueprints, construction estimate, or adapt this plan to your plot and needs.

Request more information

Visualization gallery