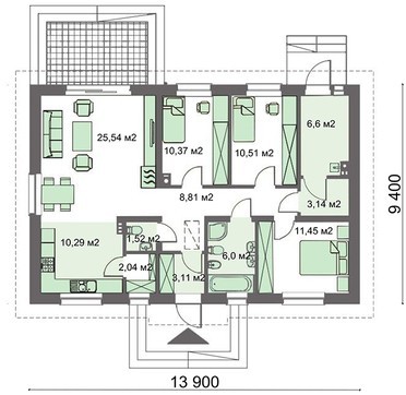
One-storey house with a living area of 100 squares

129 m² total area / 1389 ft² 1 floor 3 bedrooms 2 bathrooms
One-storey house with a living area of 100 squares
Click to view

Description

One-storey house with a living area of 100 squares<br data-rich-text-line-break="true" />Number of floors: 1<br data-rich-text-line-break="true" />Total area: 129.26 m2<br data-rich-text-line-break="true" />Living Area: 99.38 m2<br data-rich-text-line-break="true" />House height: 6.40 m<br data-rich-text-line-break="true" />Ceiling Height: 2.80 m<br data-rich-text-line-break="true" />Roof Angle: 30 °<br data-rich-text-line-break="true" />Roof area: 184.19 m2<br data-rich-text-line-break="true" />Cubic capacity: 633.87 m3<br data-rich-text-line-break="true" />Number of bedrooms: 3<br data-rich-text-line-break="true" />Number of bathrooms: 2<br data-rich-text-line-break="true" />Minimum plot size (length): 17.40 m<br data-rich-text-line-break="true" />Minimum plot size (width): 21.90 m<br data-rich-text-line-break="true" />Built-up area: 129.26 m2<br data-rich-text-line-break="true" />Materials:<br data-rich-text-line-break="true" />Walls: aerated concrete, ceramic blocks<br data-rich-text-line-break="true" />Ceiling: on wooden beams<br data-rich-text-line-break="true" />Roofing: ceramic tile, metal tile, cement-sand tile<br data-rich-text-line-break="true" />Foundation: monolithic tape

Interested in this plan?

Contact us to get full blueprints, construction estimate, or adapt this plan to your plot and needs.

Request more information

Visualization gallery