Modern apartment building with an office on the ground floor

170 m² total area / 1830 ft² 2 floors 3 bedrooms 2 bathrooms
Modern apartment building with an office on the ground floor
Click to view

Description

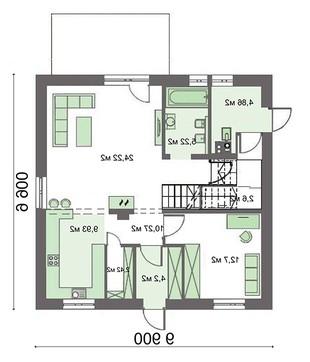
Modern apartment building with an office on the ground floor Number of floors: 2 Total area: 170.00 m2 Living Area: 125.00 m2 House height: 7.83 m Ceiling Height: 2.80 m Roof Angle: 42 ° Number of bedrooms: 3 Number of bathrooms: 2 Minimum plot size (length): 17.90 m Minimum plot size (width): 17.90 m Materials: Walls: aerated concrete, ceramic blocks Overlap: monolithic overlap Roofing: rebate Foundation: monolithic tape

Interested in this plan?

Contact us to get full blueprints, construction estimate, or adapt this plan to your plot and needs.

Request more information

Visualization gallery