Design of a modern cottage with a glazed living room

125 m² total area / 1345 ft² 1 floor 3 bedrooms 2 bathrooms
Design of a modern cottage with a glazed living room
Click to view

Description

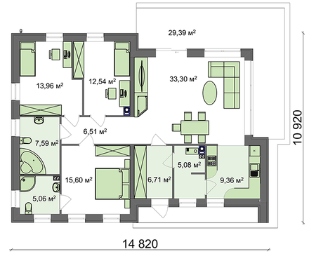
Design of a modern cottage with a glazed living room Number of floors: 1 Total area: 124.52 m2 Living Area: 75.40 m2 House height: 5.30 m Ceiling Height: 2.80 m Roof Angle: 3 ° Roof area: 71.11 m2 Cubic capacity: 302.60 m3 Number of bedrooms: 3 Number of bathrooms: 2 Minimum plot size (length): 18.74 m Minimum plot size (width): 22.64 m Built-up area: 190.23 m2 Materials: Walls: aerated concrete blocks Overlap: monolithic overlap Roofing: PVC membrane Foundation: monolithic tape band

Interested in this plan?

Contact us to get full blueprints, construction estimate, or adapt this plan to your plot and needs.

Request more information

Visualization gallery