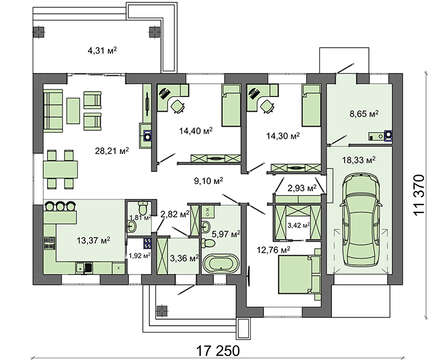
Three-bedroom one-story house project

146 m² total area / 1572 ft² 1 floor 3 bedrooms 2 bathrooms
Three-bedroom one-story house project
Click to view

Description

Three-bedroom one-story house project Number of floors: 1 Total area: 145.66 m2 Living Area: 69.67 m2 House height: 7.40 m Ceiling Height: 2.80 m Roof Angle: 35 ° Roof area: 299.00 m2 Cubic capacity: 1071.39 m3 Number of bedrooms: 3 Number of bathrooms: 2 Garage: Garage for one car Minimum plot size (length): 24.00 m Minimum plot size (width): 19.00 m Materials: Walls: aerated concrete, ceramic blocks Ceiling: on wooden beams Roofing: metal tile, ceramic tile, bitumen Foundation: monolithic tape

Interested in this plan?

Contact us to get full blueprints, construction estimate, or adapt this plan to your plot and needs.

Request more information

Visualization gallery