The project of a two-story townhouse

331 m² total area / 3563 ft² 2 floors 8 bedrooms 4 bathrooms
The project of a two-story townhouse
Click to view

Description

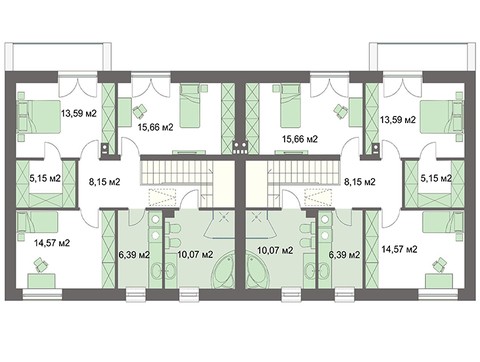
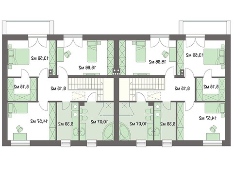
The project of a two-story townhouse Number of floors: 2 Total area: 330.66 m2 Living Area: 220.40 m2 House height: 9.00 m Ceiling Height: 2.80 m Roof Angle: 25 ° Number of bedrooms: 8 Number of bathrooms: 4 Garage: Two-car garage Minimum plot size (length): 18.90 m Minimum plot size (width): 29.50 m Materials: Walls: aerated concrete, ceramic blocks Overlap: monolithic overlap Roofing: ceramic tile, metal tile, cement-sand tile Foundation: monolithic tape

Interested in this plan?

Contact us to get full blueprints, construction estimate, or adapt this plan to your plot and needs.

Request more information

Visualization gallery