Beautiful bright rural two-story mansion

224 m² total area / 2411 ft² 2 floors 3 bedrooms 2 bathrooms
Beautiful bright rural two-story mansion
Click to view

Description

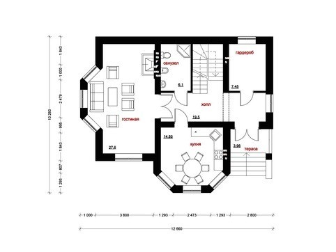
Beautiful bright rural two-story mansion<br data-rich-text-line-break="true" />Number of floors: 3<br data-rich-text-line-break="true" />Total area: 224.00 m2<br data-rich-text-line-break="true" />Number of bedrooms: 3<br data-rich-text-line-break="true" />Number of bathrooms: 2<br data-rich-text-line-break="true" />Minimum plot size (length): 19.00 m<br data-rich-text-line-break="true" />Minimum plot size (width): 16.00 m<br data-rich-text-line-break="true" />Materials:<br data-rich-text-line-break="true" />Walls: aerated concrete<br data-rich-text-line-break="true" />Overlap: monolithic overlap<br data-rich-text-line-break="true" />Roofing: ceramic tiles<br data-rich-text-line-break="true" />Foundation: monolithic tape

Interested in this plan?

Contact us to get full blueprints, construction estimate, or adapt this plan to your plot and needs.

Request more information

Visualization gallery