Attractive mansion with attic and garage

138 m² total area / 1485 ft² 1 floor 3 bedrooms 2 bathrooms
Attractive mansion with attic and garage
Click to view

Description

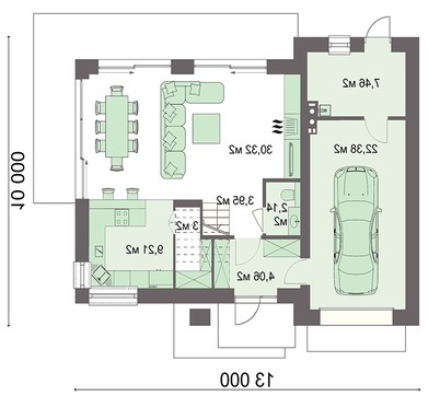
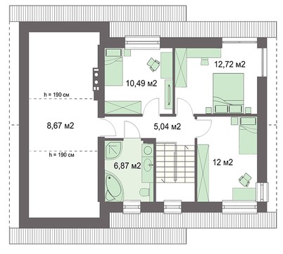
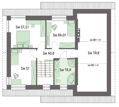
Attractive mansion with attic and garage Number of floors: 2 Total area: 138.31 m2 Living Area: 99.80 m2 House height: 8.90 m Ceiling Height: 2.80 m Roof Angle: 30 ° Number of bedrooms: 3 Number of bathrooms: 2 Garage: Garage for one car Minimum plot size (length): 18.00 m Minimum plot size (width): 21.00 m Built-up area: 112.16 m2 Materials: Walls: aerated concrete, ceramic blocks Overlap: monolithic overlap Roofing: ceramic tile, metal tile, cement-sand tile Foundation: monolithic tape

Interested in this plan?

Contact us to get full blueprints, construction estimate, or adapt this plan to your plot and needs.

Request more information

Visualization gallery