German-style cottage project

179 m² total area / 1927 ft² 1 floor 3 bedrooms 2 bathrooms
German-style cottage project
Click to view

Description

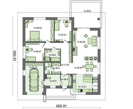
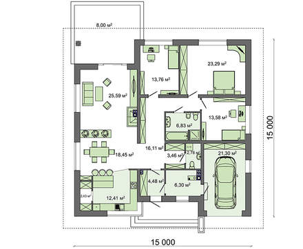
German-style cottage project<br data-rich-text-line-break="true" />Number of floors: 1<br data-rich-text-line-break="true" />Total area: 178.77 m2<br data-rich-text-line-break="true" />Living Area: 94.67 m2<br data-rich-text-line-break="true" />House height: 7.85 m<br data-rich-text-line-break="true" />Ceiling Height: 2.80 m<br data-rich-text-line-break="true" />Roof Angle: 25 °<br data-rich-text-line-break="true" />Roof area: 319.00 m2<br data-rich-text-line-break="true" />Cubic capacity: 732.30 m3<br data-rich-text-line-break="true" />Number of bedrooms: 3<br data-rich-text-line-break="true" />Number of bathrooms: 2<br data-rich-text-line-break="true" />Garage: Garage for one car<br data-rich-text-line-break="true" />Minimum plot size (length): 21.00 m<br data-rich-text-line-break="true" />Minimum plot size (width): 21.00 m<br data-rich-text-line-break="true" />Built-up area: 225.3 m2<br data-rich-text-line-break="true" />Materials:<br data-rich-text-line-break="true" />Walls: aerated concrete, ceramic blocks<br data-rich-text-line-break="true" />Ceiling: on wooden beams<br data-rich-text-line-break="true" />Roofing: metal tile, ceramic tile, bitumen<br data-rich-text-line-break="true" />Foundation: monolithic tape

Interested in this plan?

Contact us to get full blueprints, construction estimate, or adapt this plan to your plot and needs.

Request more information

Visualization gallery