Modern stylish two-story house

199 m² total area / 2142 ft² 2 floors 4 bedrooms 2 bathrooms
Modern stylish two-story house
Click to view

Description

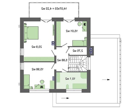
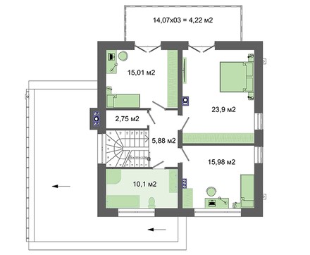
Modern stylish two-story house<br data-rich-text-line-break="true" />Number of floors: 2<br data-rich-text-line-break="true" />Total area: 199.33 m2<br data-rich-text-line-break="true" />Living Area: 94.91 m2<br data-rich-text-line-break="true" />House height: 7.45 m<br data-rich-text-line-break="true" />Ceiling Height: 2.80 m<br data-rich-text-line-break="true" />Roof Angle: 2 °<br data-rich-text-line-break="true" />Roof area: 83.00 m2<br data-rich-text-line-break="true" />Cubic capacity: 802.00 m3<br data-rich-text-line-break="true" />Number of bedrooms: 4<br data-rich-text-line-break="true" />Number of bathrooms: 2<br data-rich-text-line-break="true" />Garage: Garage for one car<br data-rich-text-line-break="true" />Minimum plot size (length): 21.90 m<br data-rich-text-line-break="true" />Minimum plot size (width): 19.80 m<br data-rich-text-line-break="true" />Materials:<br data-rich-text-line-break="true" />Walls: aerated concrete blocks<br data-rich-text-line-break="true" />Overlap: monolithic overlap<br data-rich-text-line-break="true" />Roofing: PVC membrane<br data-rich-text-line-break="true" />Foundation: monolithic tape

Interested in this plan?

Contact us to get full blueprints, construction estimate, or adapt this plan to your plot and needs.

Request more information

Visualization gallery