Magnificent house with semi-circular balconies

192 m² total area / 2067 ft² 2 floors 4 bedrooms 2 bathrooms
Magnificent house with semi-circular balconies
Click to view

Description

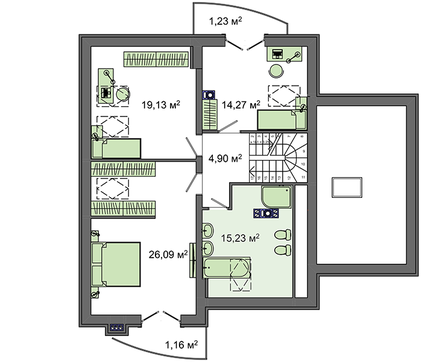
Magnificent house with semi-circular balconies<br data-rich-text-line-break="true" />Number of floors: 2<br data-rich-text-line-break="true" />Total area: 192.30 m2<br data-rich-text-line-break="true" />Living Area: 101.57 m2<br data-rich-text-line-break="true" />House height: 8.96 m<br data-rich-text-line-break="true" />Ceiling Height: 2.80 m<br data-rich-text-line-break="true" />Roof Angle: 42 °<br data-rich-text-line-break="true" />Roof area: 256.50 m2<br data-rich-text-line-break="true" />Cubature: 539.30 m3<br data-rich-text-line-break="true" />Number of bedrooms: 4<br data-rich-text-line-break="true" />Number of bathrooms: 2<br data-rich-text-line-break="true" />Garage: Garage for one car<br data-rich-text-line-break="true" />Minimum plot size (length): 21.50 m<br data-rich-text-line-break="true" />Minimum plot size (width): 20.00 m<br data-rich-text-line-break="true" />Materials:<br data-rich-text-line-break="true" />Walls: aerated concrete blocks<br data-rich-text-line-break="true" />Overlap: monolithic overlap<br data-rich-text-line-break="true" />Roofing: metal tile, ceramic tile, bitumen<br data-rich-text-line-break="true" />Foundation: monolithic slab

Interested in this plan?

Contact us to get full blueprints, construction estimate, or adapt this plan to your plot and needs.

Request more information

Visualization gallery