Two-story house with a comfortable sitting area

317 m² total area / 3412 ft² 2 floors 4 bedrooms 3 bathrooms
Two-story house with a comfortable sitting area
Click to view

Description

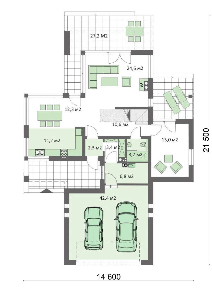
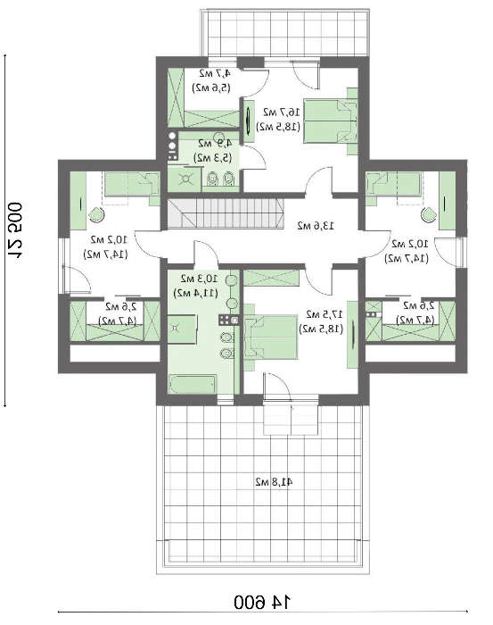
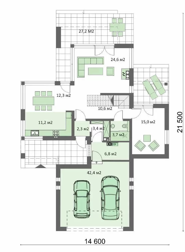
Number of floors: 2 Total area: 317.00 m2 Living Area: 201.00 m2 House height: 8.00 m Ceiling Height: 2.80 m Roof Angle: 37 ° Roof area: 244.00 m2 Cubic capacity: 1095.00 m3 Number of bedrooms: 4 Number of bathrooms: 3 Garage: Two-car garage Minimum plot size (length): 27.50 m Minimum plot size (width): 20.60 m Built-up area: 195 m2 Materials: Walls: aerated concrete, ceramic blocks Overlap: monolithic overlap Roofing: ceramic tile, metal tile, cement-sand tile Foundation: monolithic tape

Interested in this plan?

Contact us to get full blueprints, construction estimate, or adapt this plan to your plot and needs.

Request more information

Visualization gallery