The project of an economical house for a narrow plot

111 m² total area / 1195 ft² 2 floors 3 bedrooms 2 bathrooms
The project of an economical house for a narrow plot
Click to view

Description

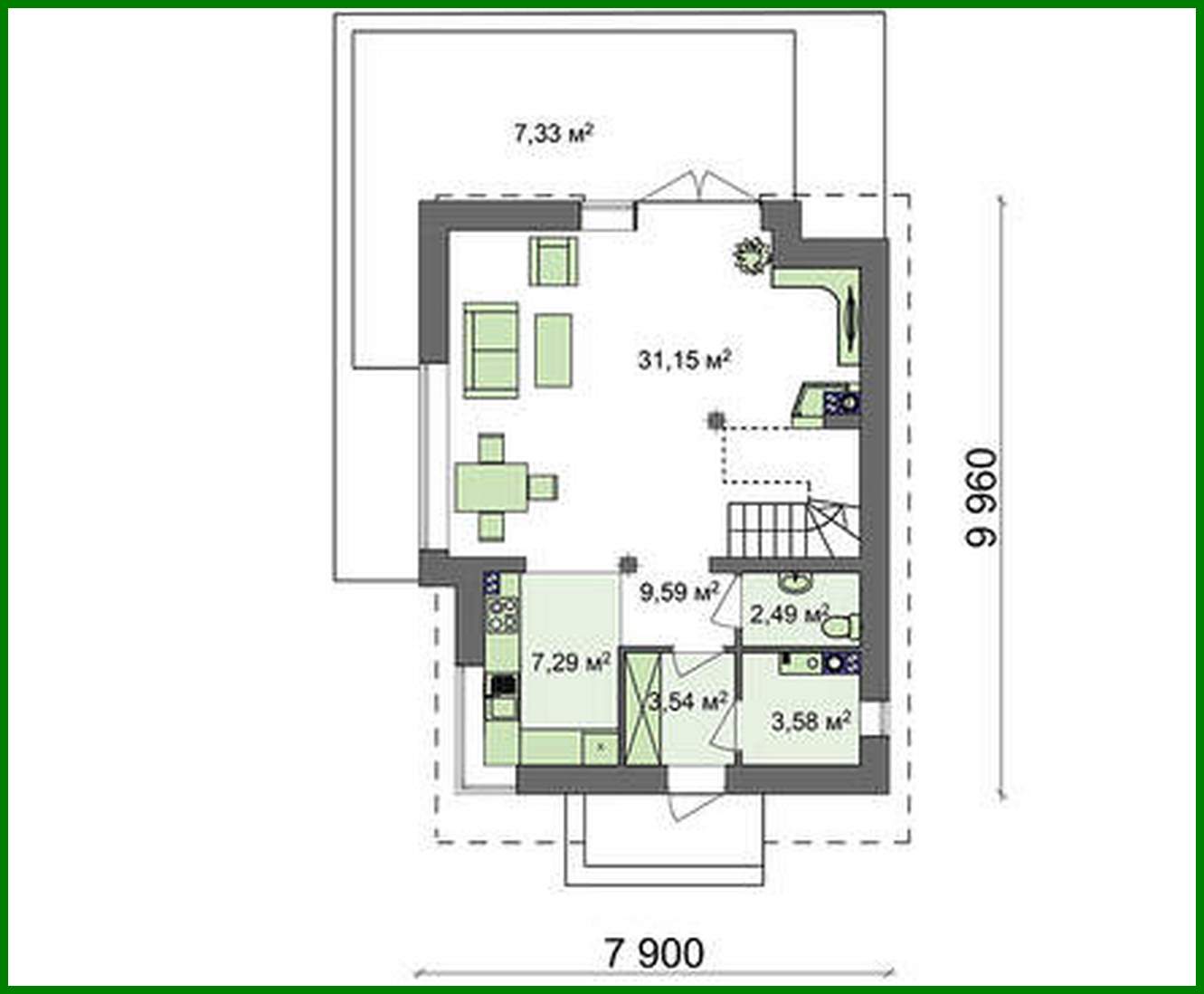
The project of an economical house for a narrow plot Number of floors: 2 Total area: 110.70 m2 Living Area: 66.59 m2 House height: 8.10 m Ceiling Height: 2.80 m Roof Angle: 35 ° Roof area: 95.30 m2 Cubic capacity: 260.20 m3 Number of bedrooms: 3 Number of bathrooms: 2 Minimum plot size (length): 14.74 m Minimum plot size (width): 17.84 m Built-up area: 73.1 m2 Materials: Walls: aerated concrete, ceramic blocks Overlap: monolithic overlap Roofing: ceramic tile, metal tile, cement-sand tile Foundation: monolithic tape

Interested in this plan?

Contact us to get full blueprints, construction estimate, or adapt this plan to your plot and needs.

Request more information

Visualization gallery