Cottage project with side terrace

205 m² total area / 2207 ft² 1 floor 4 bedrooms 3 bathrooms
Cottage project with side terrace
Click to view

Description

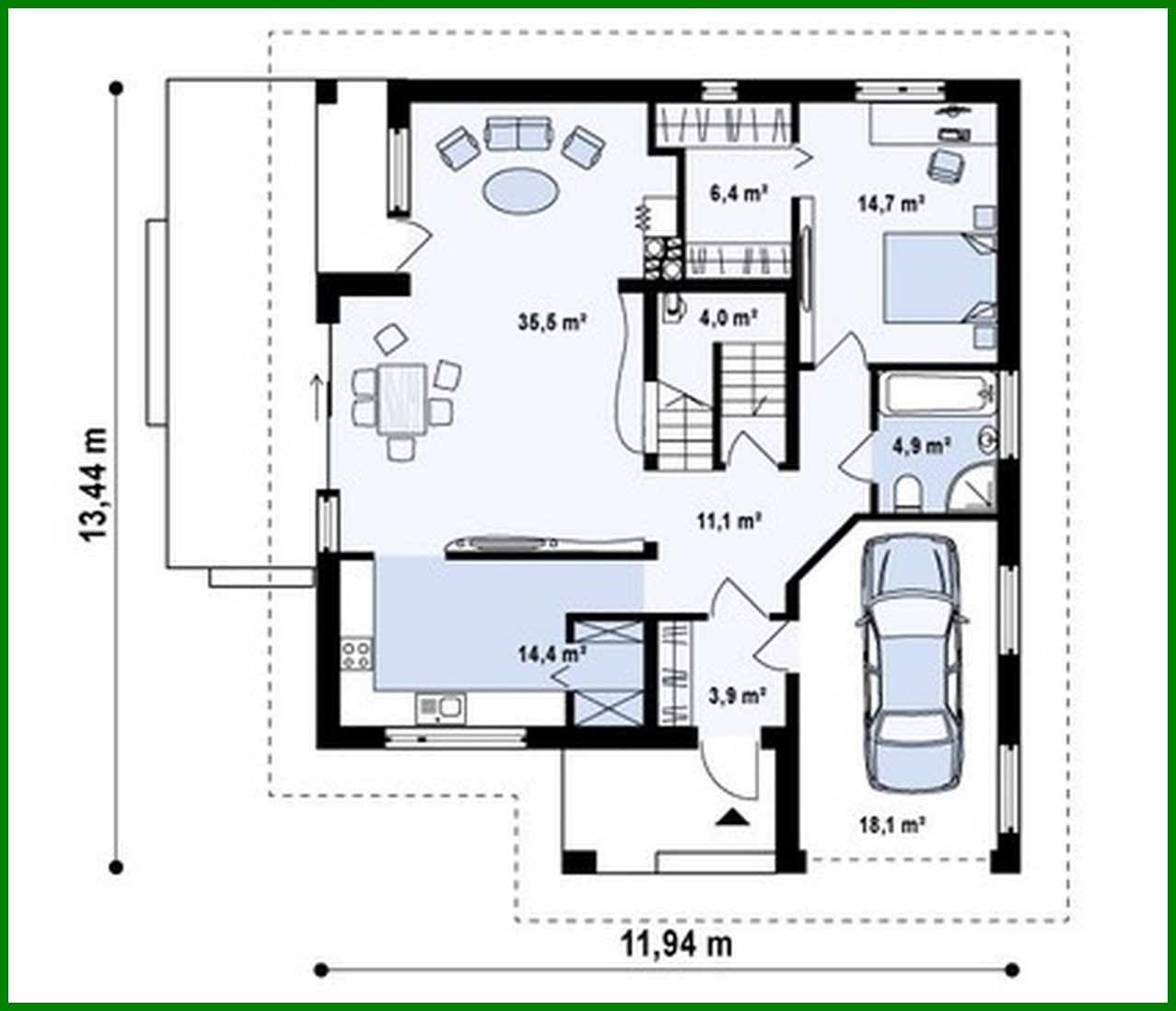
Cottage project with side terrace Number of floors: 2 Total area: 204.50 m2 Living Area: 157.70 m2 House height: 8.49 m Ceiling Height: 2.80 m Roof Angle: 37 ° Roof area: 219.00 m2 Cubature: 492.00 m3 Number of bedrooms: 4 Number of bathrooms: 3 Garage: Garage for one car Minimum plot size (length): 21.44 m Minimum plot size (width): 19.94 m Materials: Walls: aerated concrete, ceramic blocks Overlap: monolithic overlap Roofing: ceramic tile, metal tile, cement-sand tile Foundation: monolithic tape band

Interested in this plan?

Contact us to get full blueprints, construction estimate, or adapt this plan to your plot and needs.

Request more information

Visualization gallery