Stylish country house with a spacious living room

178 m² total area / 1916 ft² 2 floors 3 bedrooms 3 bathrooms
Stylish country house with a spacious living room
Click to view

Description

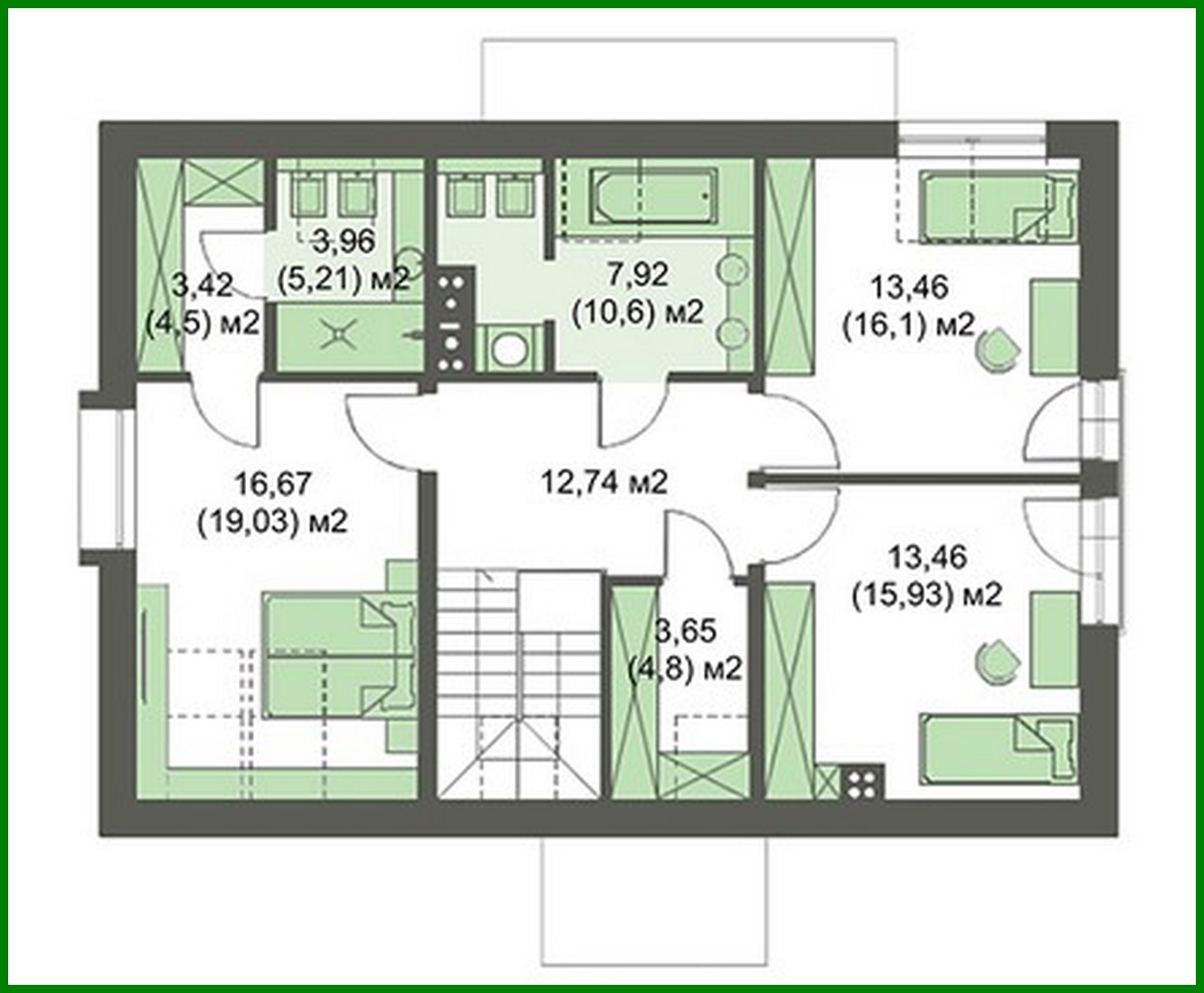
Stylish country house with a spacious living room Number of floors: 2 Total area: 178.02 m2 Living Area: 95.98 m2 House height: 8.11 m Ceiling Height: 2.80 m Roof Angle: 35 ° Cubic capacity: 725.54 m3 Number of bedrooms: 3 Number of bathrooms: 3 Garage: Garage for one car Minimum plot size (length): 19.00 m Minimum plot size (width): 17.00 m Built-up area: 116.75 m2 Materials: Walls: aerated concrete, ceramic blocks Overlap: monolithic overlap Roofing: metal tile, ceramic tile, bitumen Foundation: monolithic tape

Interested in this plan?

Contact us to get full blueprints, construction estimate, or adapt this plan to your plot and needs.

Request more information

Visualization gallery