Amazing second home apartment building

195 m² total area / 2099 ft² 2 floors 4 bedrooms 2 bathrooms
Amazing second home apartment building
Click to view

Description

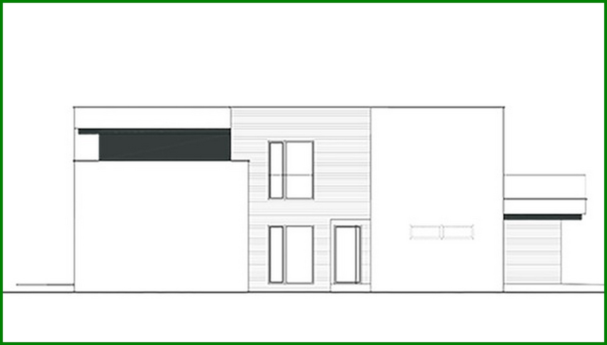
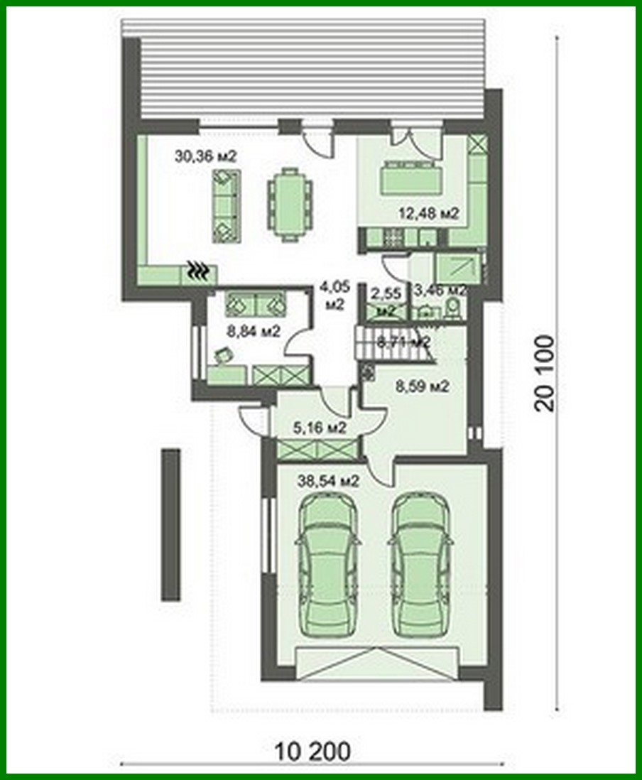
Amazing second home apartment building Number of floors: 2 Total area: 194.96 m2 Living Area: 99.37 m2 House height: 7.06 m Ceiling Height: 2.80 m Roof Angle: 3 ° Cubature: 472.82 m3 Number of bedrooms: 4 Number of bathrooms: 2 Garage: Two-car garage Minimum plot size (length): 15.50 m Minimum plot size (width): 25.50 m Built-up area: 180.12 m2 Materials: Walls: aerated concrete, ceramic blocks Overlap: monolithic overlap Roofing: PVC membrane Foundation: monolithic tape

Interested in this plan?

Contact us to get full blueprints, construction estimate, or adapt this plan to your plot and needs.

Request more information

Visualization gallery