Stylish country two-story house

168 m² total area / 1808 ft² 2 floors 3 bedrooms 2 bathrooms
Stylish country two-story house
Click to view

Description

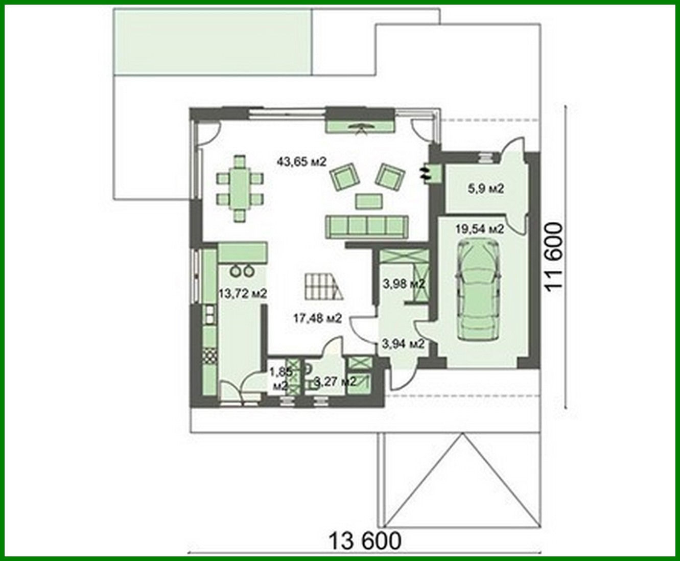
Stylish country two-story house<br data-rich-text-line-break="true" />Number of floors: 2<br data-rich-text-line-break="true" />Total area: 168.28 m2<br data-rich-text-line-break="true" />Living Area: 116.31 m2<br data-rich-text-line-break="true" />House height: 8.25 m<br data-rich-text-line-break="true" />Ceiling Height: 2.80 m<br data-rich-text-line-break="true" />Roof Angle: 45 °<br data-rich-text-line-break="true" />Cubic capacity: 343.84 m3<br data-rich-text-line-break="true" />Number of bedrooms: 3<br data-rich-text-line-break="true" />Number of bathrooms: 2<br data-rich-text-line-break="true" />Garage: Garage for one car<br data-rich-text-line-break="true" />Minimum plot size (length): 21.00 m<br data-rich-text-line-break="true" />Minimum plot size (width): 17.50 m<br data-rich-text-line-break="true" />Built-up area: 143.75 m2<br data-rich-text-line-break="true" />Materials:<br data-rich-text-line-break="true" />Walls: aerated concrete, ceramic blocks<br data-rich-text-line-break="true" />Overlap: monolithic overlap<br data-rich-text-line-break="true" />Roofing: rebate<br data-rich-text-line-break="true" />Foundation: monolithic tape

Interested in this plan?

Contact us to get full blueprints, construction estimate, or adapt this plan to your plot and needs.

Request more information

Visualization gallery