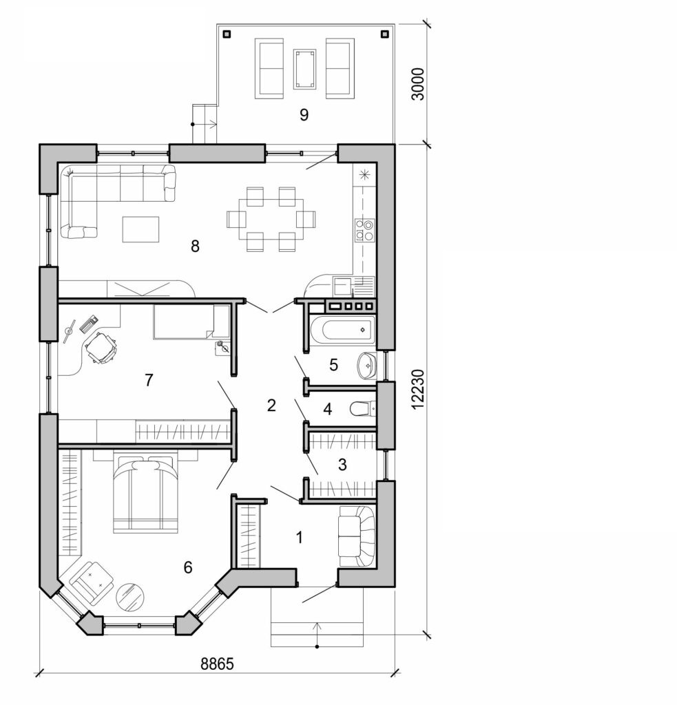
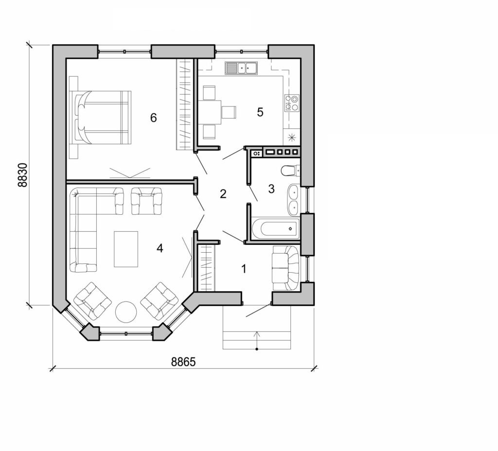
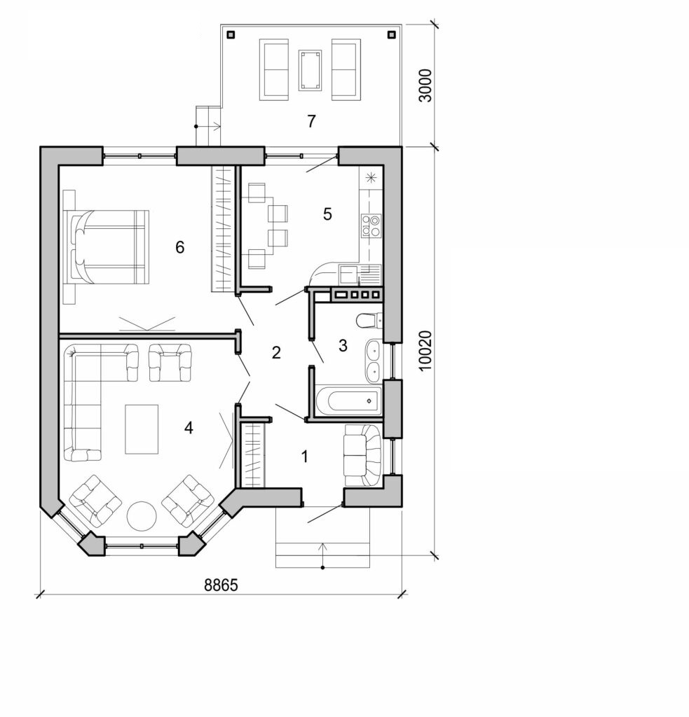
One story small home

107 m² total area / 1152 ft² 1 floor bedrooms
One story small home
Click to view

Interested in this plan?

Contact us to get full blueprints, construction estimate, or adapt this plan to your plot and needs.

Request more information

Visualization gallery