Plano de casa tipo loft boho — 2 dormitorios, 1,5 baños, 1.098 sq ft (102 m²), espacios abiertos y luminosos

102 m² de área total / 1098 ft² 2 pisos 2 dormitorios 1.5 baños
Plano de casa tipo loft boho — 2 dormitorios, 1,5 baños, 1.098 sq ft (102 m²), espacios abiertos y luminosos
Click to view

Descripción

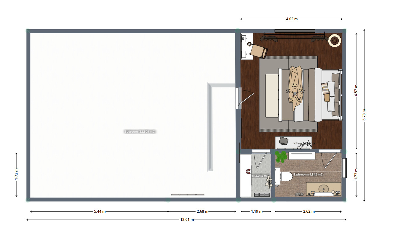
Lleva a casa un estilo relajado con este plano de casa tipo loft boho, pensado para una vida luminosa y de concepto abierto. Con 1.098 sq ft (102 m²) distribuidos en dos niveles, el corazón del diseño es un gran espacio social donde cocina, comedor y sala se integran bajo techos de 9 pies. En la planta principal encontrarás un dormitorio y un baño tipo spa que facilitan el día a día, mientras que arriba el dormitorio principal se siente como un refugio privado tipo loft. Un medio baño en la planta alta aporta comodidad, y las soluciones de almacenamiento ayudan a mantener el orden en una huella compacta. Puntos destacados del plano: - Cocina en “L” estilo chef con despensa walk-in - Baño tipo spa con doble lavabo + medio baño en la planta alta - Nichos de almacenamiento con estanterías junto al pasillo de la escalera - Zona flexible para futura oficina o cuarto de hobbies - Huella eficiente de 12 m × 6 m, ideal para terrenos estrechos Especificaciones clave: - Superficie total: 1.098 sq ft (102 m²) - 2 plantas, 2 dormitorios, 1,5 baños - Sin garaje - Dimensiones: 21' 4" (profundidad), 40' 4" (ancho), 19' 8" (altura) - Altura de techos: 9′ en planta principal; 8′ en el loft

¿Te interesa este plano?

Contáctanos para obtener los planos completos, un presupuesto de construcción o adaptar este diseño a tu terreno y necesidades.

Solicitar más información

Galería de visualizaciones

Planos arquitectónicos