Edificio elegante de dos plantas con seis habitaciones privadas

275 m² de área total / 2960 ft² 2 pisos 5 dormitorios 3 baños
Edificio elegante de dos plantas con seis habitaciones privadas
Click to view

Descripción

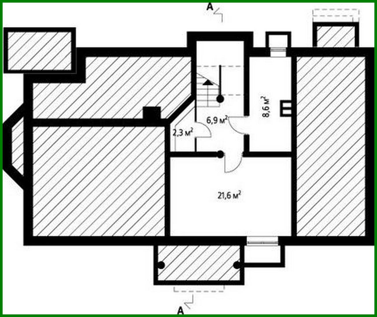
Stylish two-story building with six private rooms Número de plantas: 3 Área total: 275.30 m2 Área habitable: 193.10 m2 Altura de la casa: 8.80 m Altura del techo: 2.80 m Ángulo del techo: 58 °, 32 ° Área del techo: 295.00 m2 Volumen: 1400.00 m3 Número de dormitorios: 5 Número de baños: 3 Garaje: Garage for one car Tamaño mínimo del terreno (largo): 25.60 m Tamaño mínimo del terreno (ancho): 21.20 m Área construida: 158 m2 Área de la planta baja: 39.40 m2 Materiales: Paredes: aerated concrete, ceramic blocks Overlap: monolithic overlap Roofing: ceramic tile, metal tile, cement-sand tile Foundation: monolithic tape

¿Te interesa este plano?

Contáctanos para obtener los planos completos, un presupuesto de construcción o adaptar este diseño a tu terreno y necesidades.

Solicitar más información

Galería de visualizaciones