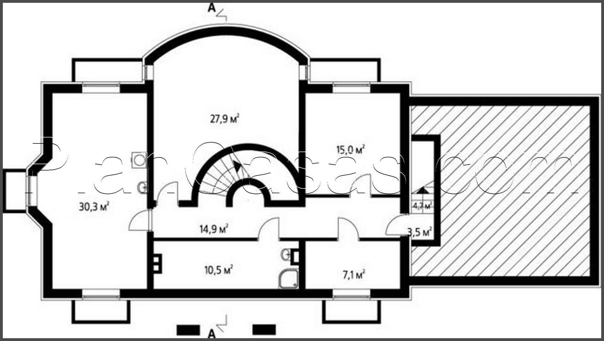
Proyecto de una enorme cabaña de campo con garaje para dos coches

422 m² de área total / 4542 ft² 2 pisos 4 dormitorios 3 baños
Proyecto de una enorme cabaña de campo con garaje para dos coches
Click to view

Descripción

The project of a huge country cottage with a garage for two cars Número de plantas: 3 Área total: 422.10 m2 Área habitable: 187.90 m2 Altura de la casa: 9.20 m Altura del techo: 2.80 m Ángulo del techo: 45 ° Área del techo: 343.00 m2 Volumen: 1613.00 m3 Número de dormitorios: 4 Número de baños: 3 Garaje: Two-car garage Tamaño mínimo del terreno (largo): 29.70 m Tamaño mínimo del terreno (ancho): 22.30 m Área construida: 197 m2 Materiales: Paredes: aerated concrete, ceramic blocks Overlap: monolithic overlap Roofing: ceramic tile, metal tile, cement-sand tile Foundation: monolithic tape

¿Te interesa este plano?

Contáctanos para obtener los planos completos, un presupuesto de construcción o adaptar este diseño a tu terreno y necesidades.

Solicitar más información

Galería de visualizaciones