Proyecto de una cabaña con ático de 7 x 9 en estilo clásico

95 m² de área total / 1023 ft² 2 pisos 4 dormitorios 2 baños
Proyecto de una cabaña con ático de 7 x 9 en estilo clásico
Click to view

Descripción

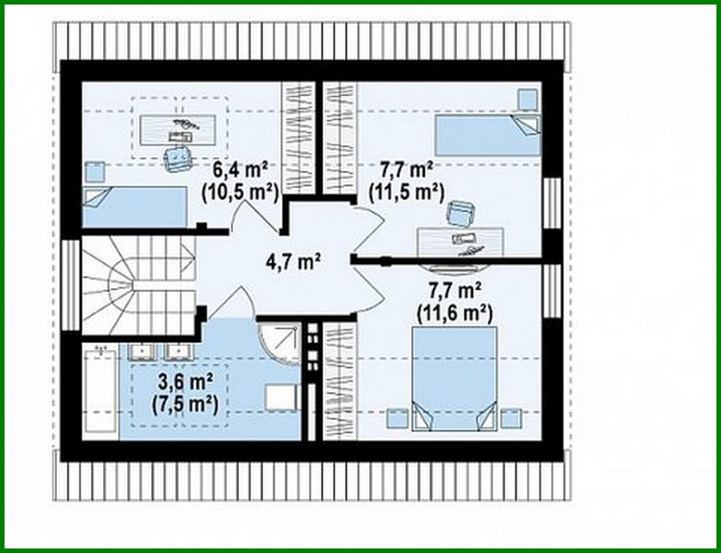
The project of a cottage with an attic 7 on 9 in a classic style Número de plantas: 2 Área total: 94.80 m2 Área habitable: 79.00 m2 Altura de la casa: 7.14 m Altura del techo: 2.80 m Ángulo del techo: 40 ° Área del techo: 97.00 m2 Volumen: 296.00 m3 Número de dormitorios: 4 Número de baños: 2 Tamaño mínimo del terreno (largo): 16.90 m Tamaño mínimo del terreno (ancho): 15.10 m Área construida: 64 m2 Materiales: Paredes: aerated concrete, ceramic blocks Overlap: monolithic overlap Roofing: ceramic tile, metal tile, cement-sand tile Foundation: monolithic tape band

¿Te interesa este plano?

Contáctanos para obtener los planos completos, un presupuesto de construcción o adaptar este diseño a tu terreno y necesidades.

Solicitar más información

Galería de visualizaciones