Proyecto de casa sencilla con ático

181 m² de área total / 1948 ft² 2 pisos 3 dormitorios 2 baños
Proyecto de casa sencilla con ático
Click to view

Descripción

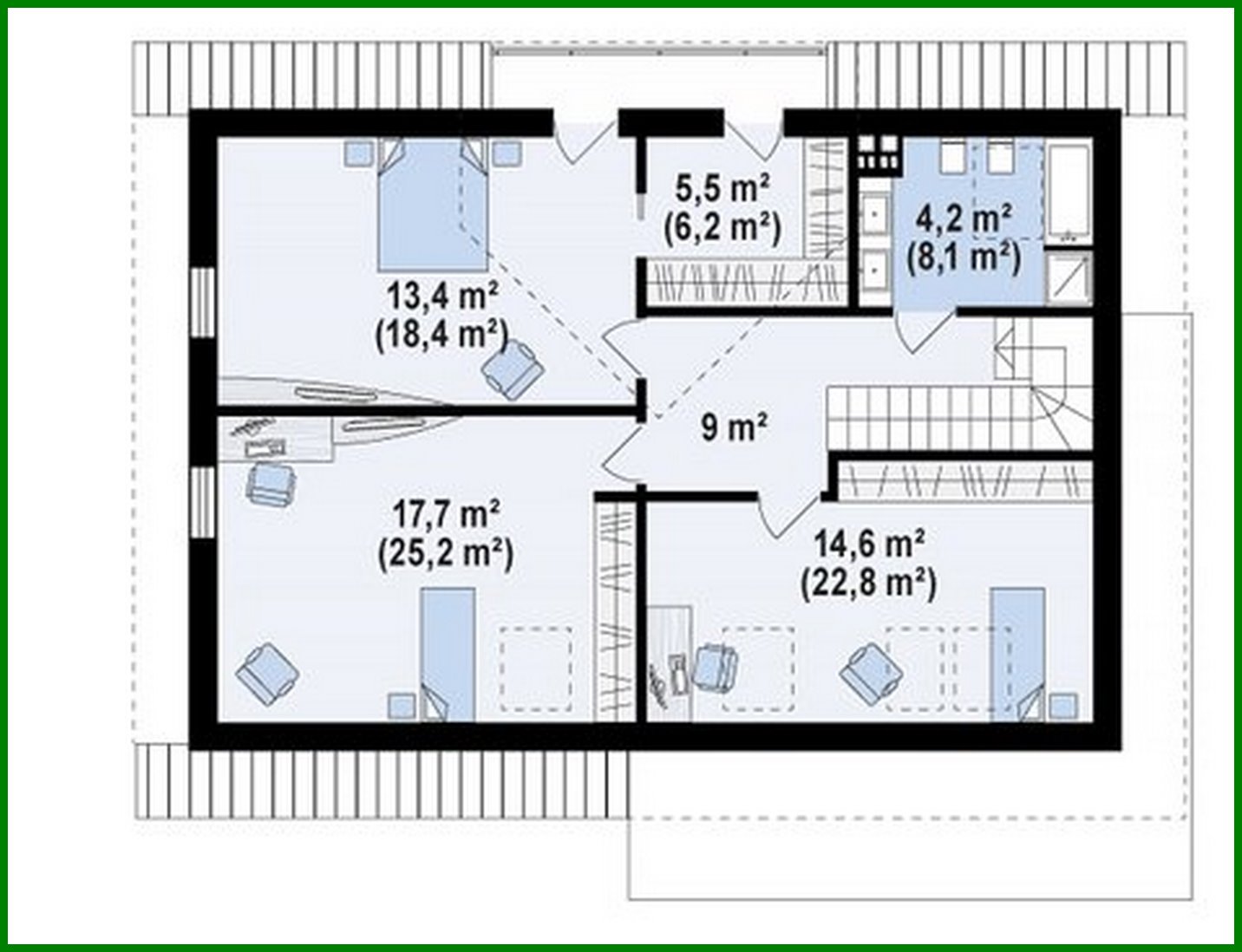
Simple Attic House Project Número de plantas: 2 Área total: 181.00 m2 Área habitable: 156.00 m2 Altura de la casa: 7.52 m Altura del techo: 2.80 m Ángulo del techo: 35 ° Área del techo: 213.00 m2 Volumen: 456.00 m3 Número de dormitorios: 3 Número de baños: 2 Tamaño mínimo del terreno (largo): 20.40 m Tamaño mínimo del terreno (ancho): 18.10 m Área construida: 130 m2 Materiales: Paredes: aerated concrete, ceramic blocks Overlap: monolithic overlap Roofing: ceramic tile, metal tile, cement-sand tile Foundation: monolithic tape band

¿Te interesa este plano?

Contáctanos para obtener los planos completos, un presupuesto de construcción o adaptar este diseño a tu terreno y necesidades.

Solicitar más información

Galería de visualizaciones