Proyecto de casa con garaje en el sótano

214 m² de área total / 2303 ft² 2 pisos 3 dormitorios 4 baños
Proyecto de casa con garaje en el sótano
Click to view

Descripción

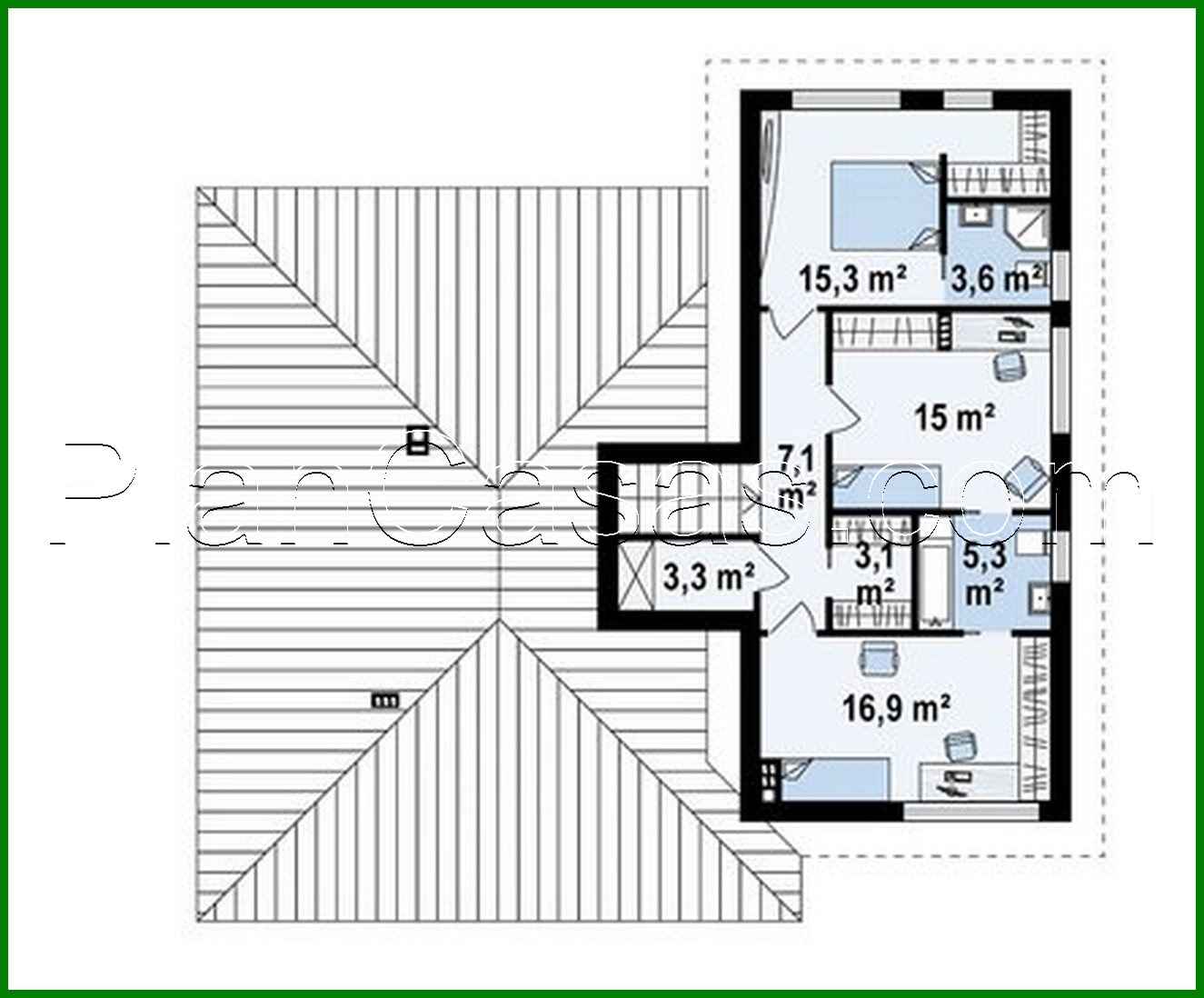
House project with a garage in the basement Número de plantas: 2 Área total: 213.50 m2 Área habitable: 186.00 m2 Altura de la casa: 6.83 m Altura del techo: 2.80 m Ángulo del techo: 20 ° Área del techo: 270.00 m2 Volumen: 270.00 m3 Número de dormitorios: 3 Número de baños: 4 Garaje: Garage for one car Tamaño mínimo del terreno (largo): 22.90 m Tamaño mínimo del terreno (ancho): 23.50 m Área construida: 188 m2 Materiales: Paredes: aerated concrete, ceramic blocks Overlap: monolithic overlap Roofing: ceramic tile, metal tile, cement-sand tile Foundation: monolithic tape band

¿Te interesa este plano?

Contáctanos para obtener los planos completos, un presupuesto de construcción o adaptar este diseño a tu terreno y necesidades.

Solicitar más información

Galería de visualizaciones