Mansión preciosa con garaje para 2 coches

265 m² de área total / 2852 ft² 2 pisos 5 dormitorios 3 baños
Mansión preciosa con garaje para 2 coches
Click to view

Descripción

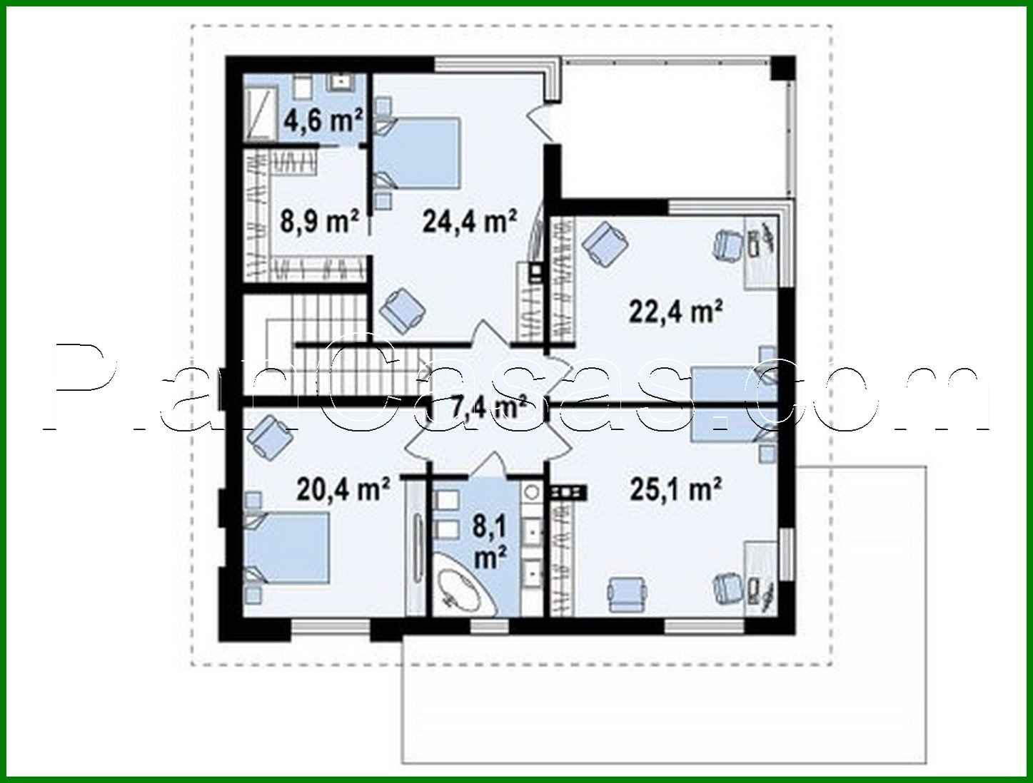
Beautiful mansion with 2 car garage Número de plantas: 2 Área total: 264.50 m2 Área habitable: 225.10 m2 Altura de la casa: 8.49 m Altura del techo: 2.80 m Ángulo del techo: 20 ° Área del techo: 267.00 m2 Volumen: 695.00 m3 Número de dormitorios: 5 Número de baños: 3 Garaje: Two-car garage Tamaño mínimo del terreno (largo): 23.00 m Tamaño mínimo del terreno (ancho): 24.00 m Área construida: 205 m2 Materiales: Paredes: aerated concrete, ceramic blocks Overlap: monolithic overlap Roofing: ceramic tile, metal tile, cement-sand tile Foundation: monolithic tape band

¿Te interesa este plano?

Contáctanos para obtener los planos completos, un presupuesto de construcción o adaptar este diseño a tu terreno y necesidades.

Solicitar más información

Galería de visualizaciones