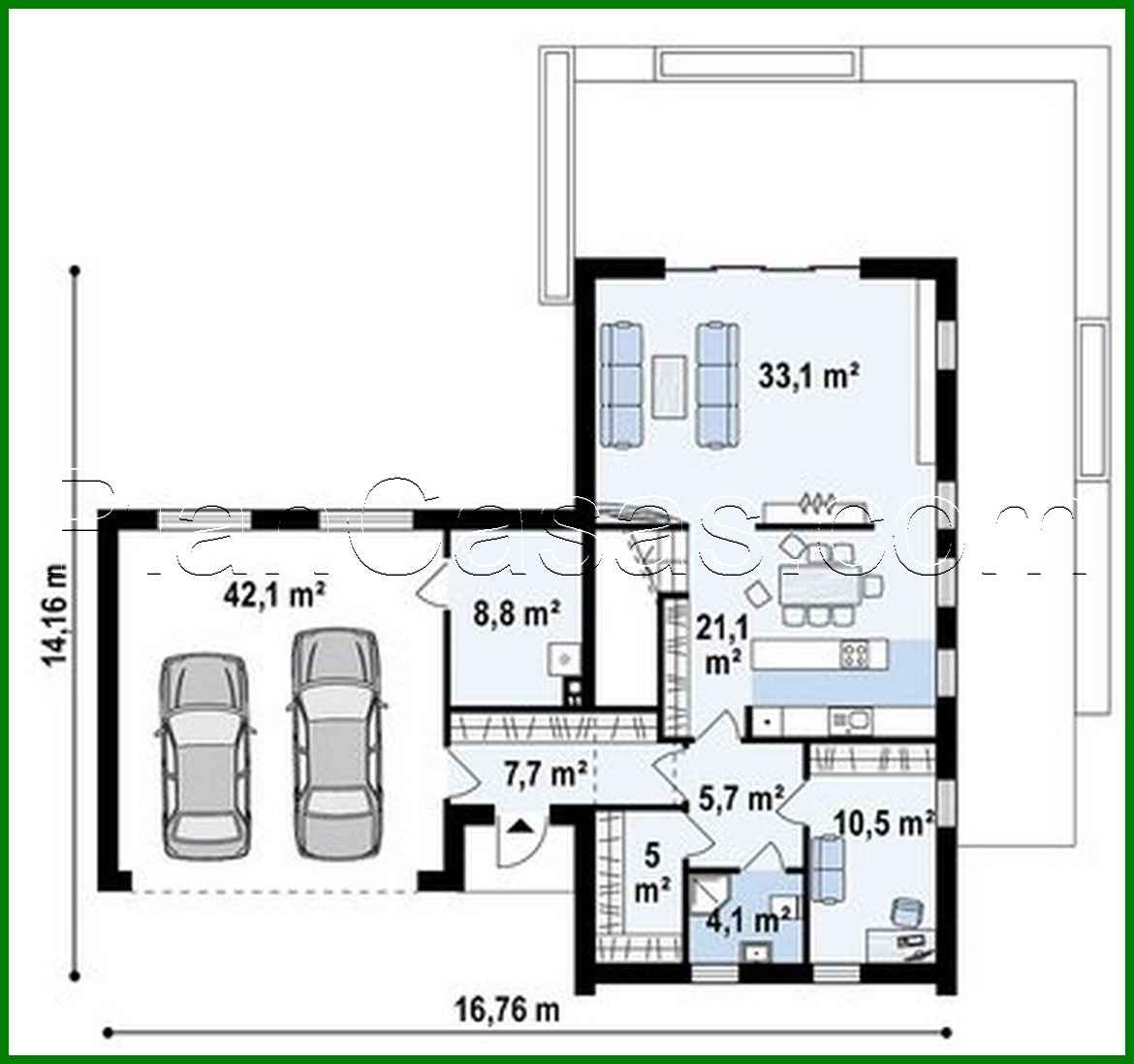
Cabaña con ático y garaje para dos coches

219 m² de área total / 2357 ft² 2 pisos 4 dormitorios 2 baños
Cabaña con ático y garaje para dos coches
Click to view

Descripción

Cottage with an attic with a garage for two cars Número de plantas: 2 Área total: 219.30 m2 Área habitable: 163.50 m2 Altura de la casa: 8.51 m Altura del techo: 2.80 m Ángulo del techo: 40 ° Número de dormitorios: 4 Número de baños: 2 Garaje: Two-car garage Tamaño mínimo del terreno (largo): 22.50 m Tamaño mínimo del terreno (ancho): 24.50 m Materiales: Paredes: aerated concrete, ceramic blocks Overlap: monolithic overlap Roofing: ceramic tile, metal tile, cement-sand tile Foundation: monolithic tape band

¿Te interesa este plano?

Contáctanos para obtener los planos completos, un presupuesto de construcción o adaptar este diseño a tu terreno y necesidades.

Solicitar más información

Galería de visualizaciones