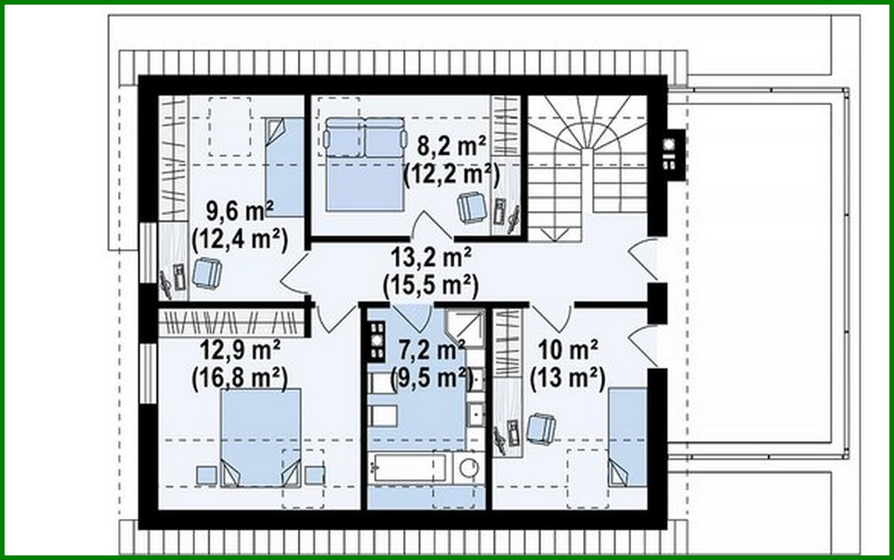
Proyecto interesante con una gran terraza sobre el garaje

168 m² de área total / 1808 ft² 2 pisos dormitorios
Proyecto interesante con una gran terraza sobre el garaje
Click to view

Descripción

Interesting project with a large terrace above the garage Número de plantas: 2 Área total: 168.00 m2 Área habitable: 150.00 m2 Altura de la casa: 8.18 m Altura del techo: 2.80 m Ángulo del techo: 40 ° Volumen: 409.00 m3 Garaje: Garage for one car Tamaño mínimo del terreno (largo): 22.25 m Tamaño mínimo del terreno (ancho): 28.06 m Área construida: 160 m2 Materiales: Paredes: aerated concrete, ceramic blocks Overlap: monolithic overlap Roofing: ceramic tile, metal tile, cement-sand tile Foundation: monolithic tape band

¿Te interesa este plano?

Contáctanos para obtener los planos completos, un presupuesto de construcción o adaptar este diseño a tu terreno y necesidades.

Solicitar más información

Galería de visualizaciones