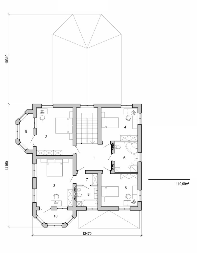
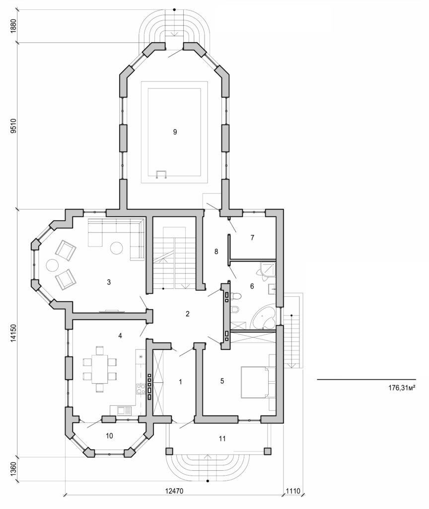
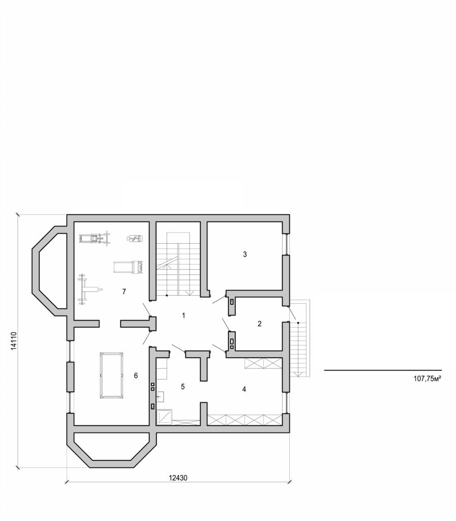
Proyecto de casa de dos plantas

404 m² de área total / 4349 ft² 2 pisos dormitorios
Proyecto de casa de dos plantas
Click to view

¿Te interesa este plano?

Contáctanos para obtener los planos completos, un presupuesto de construcción o adaptar este diseño a tu terreno y necesidades.

Solicitar más información

Galería de visualizaciones