Bonito proyecto de casa ecológica con garaje

130 m² de área total / 1399 ft² 2 pisos 3 dormitorios 2 baños
Bonito proyecto de casa ecológica con garaje
Click to view

Descripción

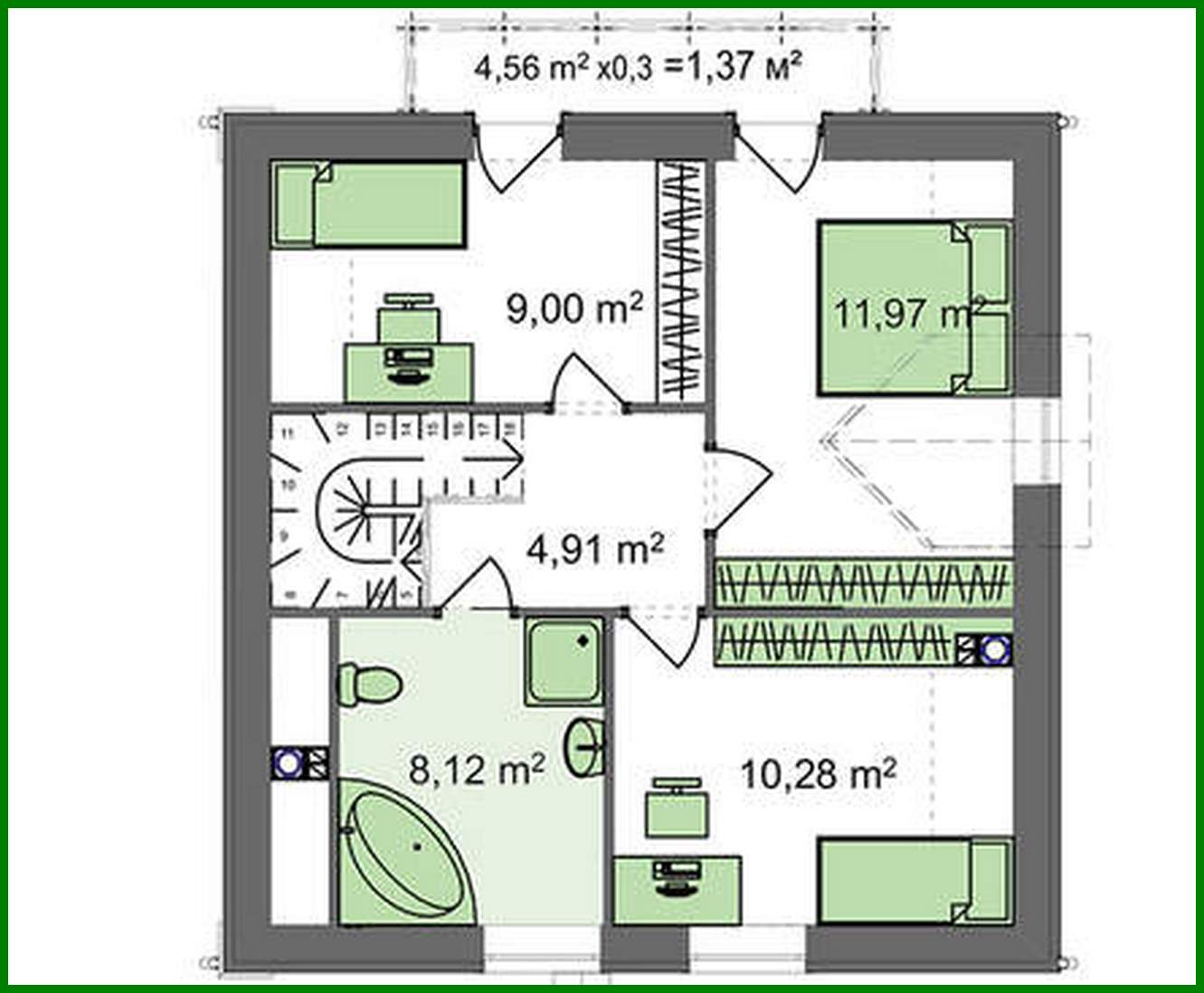
Nice eco home project with garage Número de plantas: 2 Área total: 130.18 m2 Área habitable: 66.75 m2 Altura de la casa: 8.00 m Altura del techo: 2.80 m Ángulo del techo: 42 ° Área del techo: 127.89 m2 Volumen: 322.00 m3 Número de dormitorios: 3 Número de baños: 2 Garaje: Garage for one car Tamaño mínimo del terreno (largo): 19.00 m Tamaño mínimo del terreno (ancho): 16.00 m Materiales: Paredes: aerated concrete blocks Overlap: monolithic overlap Roofing: ceramic tile, metal tile, cement-sand tile Foundation: monolithic tape

¿Te interesa este plano?

Contáctanos para obtener los planos completos, un presupuesto de construcción o adaptar este diseño a tu terreno y necesidades.

Solicitar más información

Galería de visualizaciones