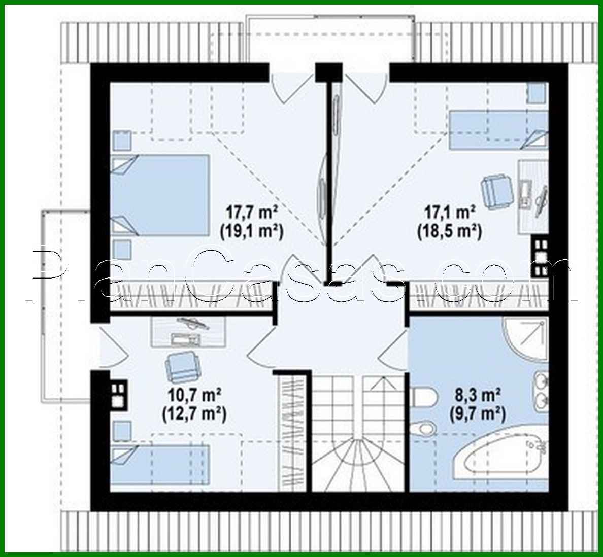
Proyecto de una casa pequeña y preciosa con ático

131 m² de área total / 1410 ft² 1 piso dormitorios
Proyecto de una casa pequeña y preciosa con ático
Click to view

Descripción

Project of a small beautiful house with an attic Número de plantas: 2 Área total: 131.40 m2 Área habitable: 125.30 m2 Altura de la casa: 7.97 m Altura del techo: 2.80 m Ángulo del techo: 35 ° Área del techo: 133.00 m2 Volumen: 335.00 m3 Tamaño mínimo del terreno (largo): 16.54 m Tamaño mínimo del terreno (ancho): 16.94 m Materiales: Paredes: aerated concrete, ceramic blocks Overlap: monolithic overlap Roofing: ceramic tile, metal tile, cement-sand tile Foundation: monolithic tape band

¿Te interesa este plano?

Contáctanos para obtener los planos completos, un presupuesto de construcción o adaptar este diseño a tu terreno y necesidades.

Solicitar más información

Galería de visualizaciones