Proyecto de una casa clásica con una habitación en la planta baja

138 m² de área total / 1485 ft² 1 piso 4 dormitorios 3 baños
Proyecto de una casa clásica con una habitación en la planta baja
Click to view

Descripción

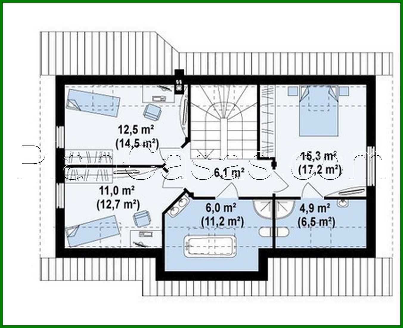
Project of a classic house with a room on the ground floor Número de plantas: 2 Área total: 138.00 m2 Altura de la casa: 8.00 m Altura del techo: 2.80 m Ángulo del techo: 45 ° Área del techo: 176.00 m2 Volumen: 344.00 m3 Número de dormitorios: 4 Número de baños: 3 Tamaño mínimo del terreno (largo): 20.00 m Tamaño mínimo del terreno (ancho): 15.00 m Materiales: Paredes: aerated concrete, ceramic blocks Overlap: monolithic overlap Roofing: ceramic tile, metal tile, cement-sand tile Foundation: monolithic tape band

¿Te interesa este plano?

Contáctanos para obtener los planos completos, un presupuesto de construcción o adaptar este diseño a tu terreno y necesidades.

Solicitar más información

Galería de visualizaciones