Proyecto de una casa pequeña con una oficina en la planta baja

119 m² de área total / 1281 ft² 2 pisos 3 dormitorios 2 baños
Proyecto de una casa pequeña con una oficina en la planta baja
Click to view

Descripción

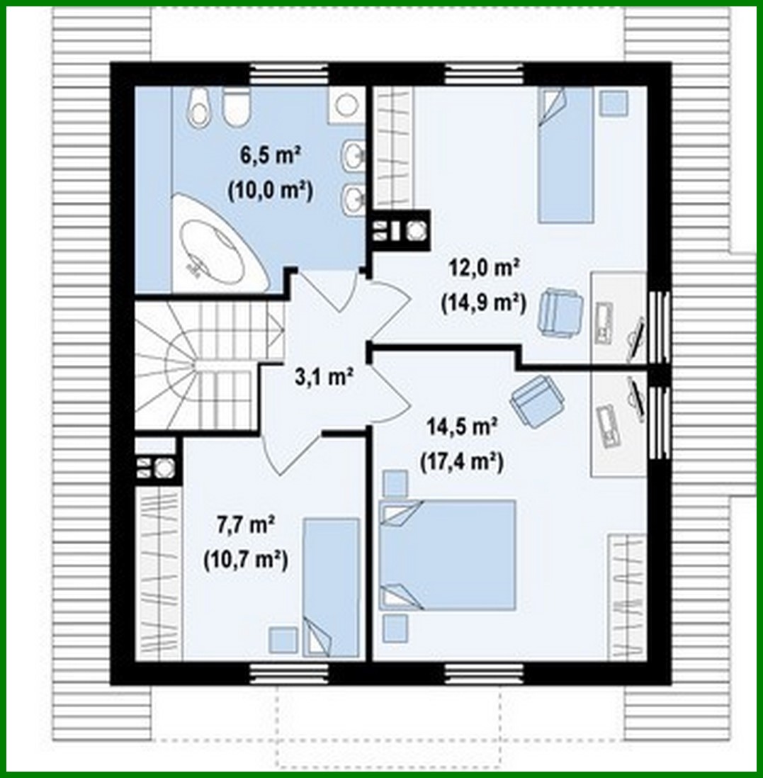
Project of a small house with an office on the ground floor Número de plantas: 2 Área total: 118.60 m2 Área habitable: 107.00 m2 Altura de la casa: 7.00 m Altura del techo: 2.80 m Ángulo del techo: 40 ° / 12 ° Área del techo: 143.00 m2 Volumen: 314.00 m3 Número de dormitorios: 3 Número de baños: 2 Tamaño mínimo del terreno (largo): 17.00 m Tamaño mínimo del terreno (ancho): 16.00 m Materiales: Paredes: aerated concrete, ceramic blocks Overlap: monolithic overlap Roofing: ceramic tile, metal tile, cement-sand tile Foundation: monolithic tape band

¿Te interesa este plano?

Contáctanos para obtener los planos completos, un presupuesto de construcción o adaptar este diseño a tu terreno y necesidades.

Solicitar más información

Galería de visualizaciones