Proyecto de una casa sencilla con techo a dos aguas

159 m² de área total / 1711 ft² 2 pisos 3 dormitorios 2 baños
Proyecto de una casa sencilla con techo a dos aguas
Click to view

Descripción

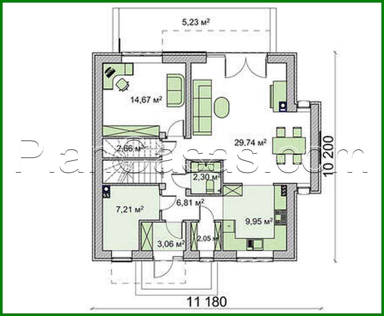
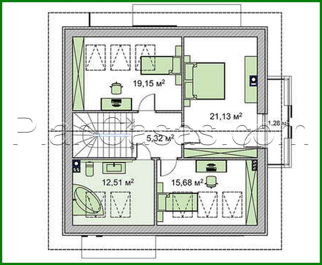
The project of a simple house with a gable roof Número de plantas: 2 Área total: 158.75 m2 Área habitable: 100.37 m2 Altura de la casa: 8.84 m Altura del techo: 2.80 m Ángulo del techo: 40 ° Área del techo: 220.00 m2 Volumen: 603.00 m3 Número de dormitorios: 3 Número de baños: 2 Tamaño mínimo del terreno (largo): 16.00 m Tamaño mínimo del terreno (ancho): 17.00 m Área construida: 131.5 m2 Materiales: Paredes: aerated concrete blocks Overlap: monolithic overlap Roofing: metal tile, ceramic tile, bitumen Foundation: monolithic tape

¿Te interesa este plano?

Contáctanos para obtener los planos completos, un presupuesto de construcción o adaptar este diseño a tu terreno y necesidades.

Solicitar más información

Galería de visualizaciones