Proyecto de casa de campo con garaje integrado y ático

173 m² de área total / 1862 ft² 1 piso 4 dormitorios 2 baños
Proyecto de casa de campo con garaje integrado y ático
Click to view

Descripción

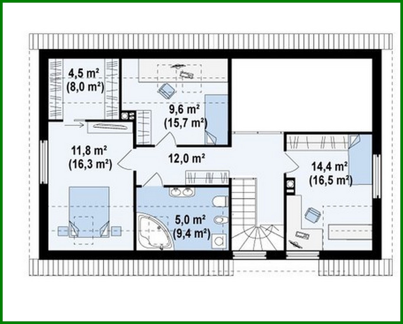
Cottage project with built-in garage and attic Número de plantas: 2 Área total: 173.00 m2 Área habitable: 126.50 m2 Altura de la casa: 7.42 m Altura del techo: 2.80 m Ángulo del techo: 37 ° Área del techo: 183.00 m2 Volumen: 431.00 m3 Número de dormitorios: 4 Número de baños: 2 Garaje: Garage for one car Tamaño mínimo del terreno (largo): 22.04 m Tamaño mínimo del terreno (ancho): 16.64 m Materiales: Paredes: aerated concrete, ceramic blocks Overlap: monolithic overlap Roofing: ceramic tile, metal tile, cement-sand tile Foundation: monolithic tape band

¿Te interesa este plano?

Contáctanos para obtener los planos completos, un presupuesto de construcción o adaptar este diseño a tu terreno y necesidades.

Solicitar más información

Galería de visualizaciones