Proyecto de una casa de una planta con ático y una gran ventana frontal en el salón

197 m² de área total / 2120 ft² 2 pisos 4 dormitorios 2 baños
Proyecto de una casa de una planta con ático y una gran ventana frontal en el salón
Click to view

Descripción

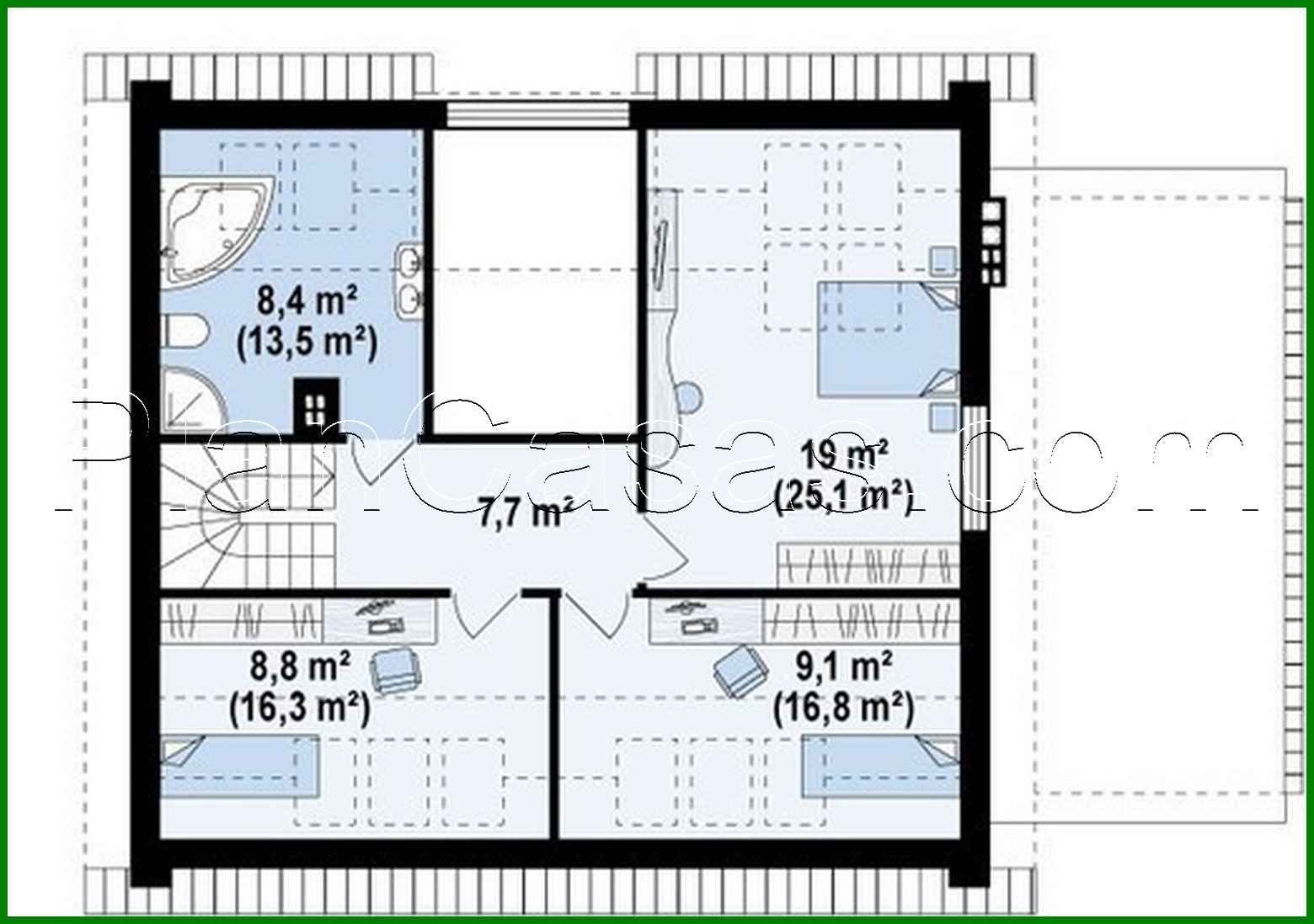
The project of a one-story house with an attic and a large front window in the living room Número de plantas: 2 Área total: 197.00 m2 Área habitable: 142.50 m2 Altura de la casa: 8.00 m Altura del techo: 2.80 m Ángulo del techo: 37 ° Área del techo: 195.00 m2 Volumen: 485.00 m3 Número de dormitorios: 4 Número de baños: 2 Garaje: Garage for one car Tamaño mínimo del terreno (largo): 22.24 m Tamaño mínimo del terreno (ancho): 18.64 m Materiales: Paredes: aerated concrete, ceramic blocks Overlap: monolithic overlap Roofing: ceramic tile, metal tile, cement-sand tile Foundation: monolithic tape band

¿Te interesa este plano?

Contáctanos para obtener los planos completos, un presupuesto de construcción o adaptar este diseño a tu terreno y necesidades.

Solicitar más información

Galería de visualizaciones