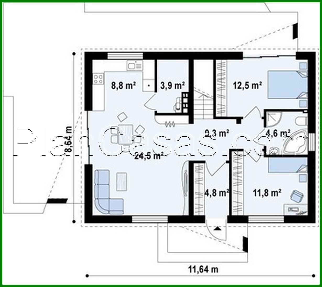
Proyecto de una casa clásica de distribución moderna

80 m² de área total / 861 ft² 1 piso 2 dormitorios 1 baño
Proyecto de una casa clásica de distribución moderna
Click to view

Descripción

Project of a classic house of modern layout Número de plantas: 1 Área total: 80.20 m2 Altura de la casa: 6.58 m Altura del techo: 2.80 m Ángulo del techo: 30 ° Área del techo: 146.00 m2 Volumen: 216.00 m3 Número de dormitorios: 2 Número de baños: 1 Tamaño mínimo del terreno (largo): 19.64 m Tamaño mínimo del terreno (ancho): 16.64 m Materiales: Paredes: aerated concrete, ceramic blocks Techo: on wooden beams Roofing: metal tile, ceramic tile, bitumen Foundation: monolithic tape

¿Te interesa este plano?

Contáctanos para obtener los planos completos, un presupuesto de construcción o adaptar este diseño a tu terreno y necesidades.

Solicitar más información

Galería de visualizaciones