Proyecto de casa clásica con garaje y dormitorio adicional

195 m² de área total / 2099 ft² 1 piso 3 dormitorios 4 baños
Proyecto de casa clásica con garaje y dormitorio adicional
Click to view

Descripción

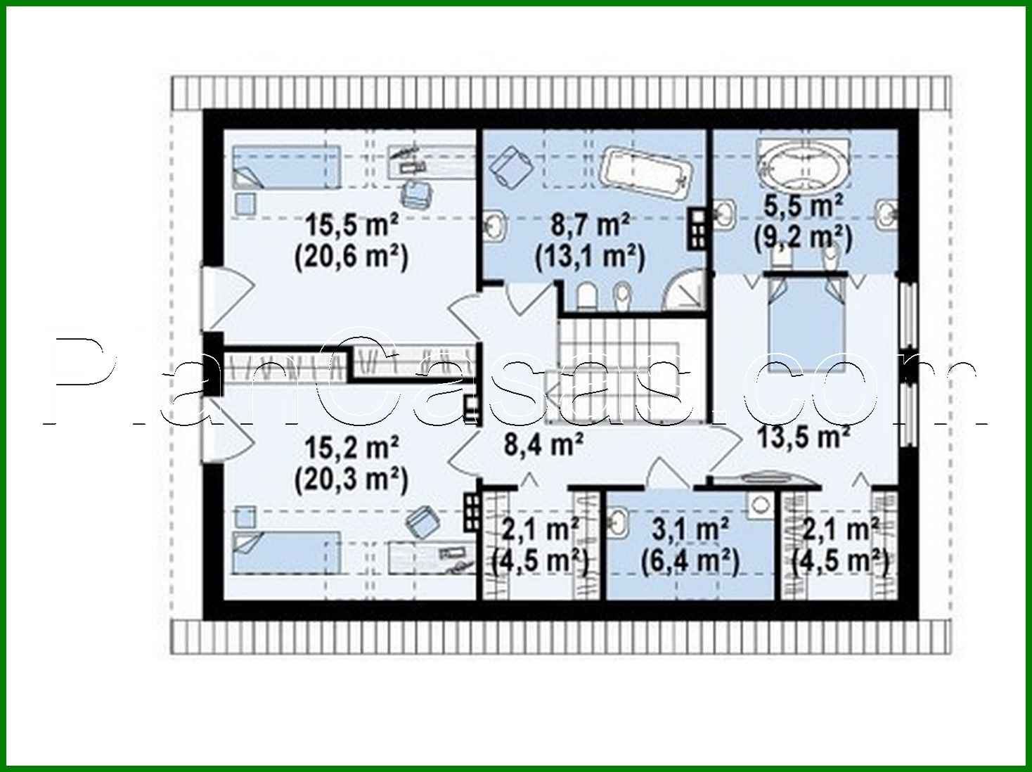
Classic house project with garage, extra bedroom Número de plantas: 2 Área total: 194.80 m2 Área habitable: 142.40 m2 Altura de la casa: 8.29 m Altura del techo: 2.80 m Ángulo del techo: 40 ° Área del techo: 197.00 m2 Volumen: 514.00 m3 Número de dormitorios: 3 Número de baños: 4 Garaje: Garage for one car Tamaño mínimo del terreno (largo): 21.44 m Tamaño mínimo del terreno (ancho): 17.60 m Materiales: Paredes: aerated concrete, ceramic blocks Overlap: monolithic overlap Roofing: ceramic tile, metal tile, cement-sand tile Foundation: monolithic tape band

¿Te interesa este plano?

Contáctanos para obtener los planos completos, un presupuesto de construcción o adaptar este diseño a tu terreno y necesidades.

Solicitar más información

Galería de visualizaciones