Proyecto de una casa de campo con garaje para dos familias

162 m² de área total / 1744 ft² 2 pisos 3 dormitorios 2 baños
Proyecto de una casa de campo con garaje para dos familias
Click to view

Descripción

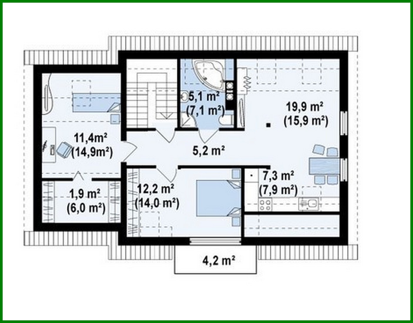
The project of a cottage with a garage, for two families Número de plantas: 2 Área total: 161.80 m2 Área habitable: 124.90 m2 Altura de la casa: 7.90 m Altura del techo: 2.80 m Ángulo del techo: 40 ° / 8 ° Área del techo: 167.00 m2 Volumen: 468.00 m3 Número de dormitorios: 3 Número de baños: 2 Garaje: Garage for one car Tamaño mínimo del terreno (largo): 17.00 m Tamaño mínimo del terreno (ancho): 20.00 m Materiales: Paredes: aerated concrete, ceramic blocks Overlap: monolithic overlap Roofing: ceramic tile, metal tile, cement-sand tile Foundation: monolithic tape band

¿Te interesa este plano?

Contáctanos para obtener los planos completos, un presupuesto de construcción o adaptar este diseño a tu terreno y necesidades.

Solicitar más información

Galería de visualizaciones