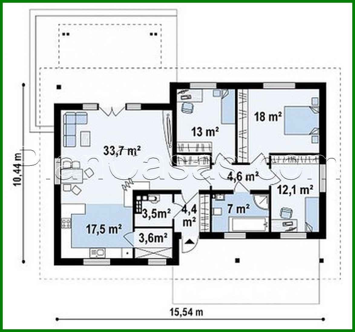
Proyecto de una casa de campo con techo inclinado

111 m² de área total / 1195 ft² 1 piso 3 dormitorios 1 baño
Proyecto de una casa de campo con techo inclinado
Click to view

Descripción

The project of a country house with a sloping roof Número de plantas: 1 Área total: 111.00 m2 Altura de la casa: 6.37 m Altura del techo: 2.80 m Ángulo del techo: 25 ° Área del techo: 227.00 m2 Volumen: 305.10 m3 Número de dormitorios: 3 Número de baños: 1 Tamaño mínimo del terreno (largo): 18.00 m Tamaño mínimo del terreno (ancho): 23.00 m Materiales: Paredes: aerated concrete, ceramic blocks Techo: on wooden beams Roofing: ceramic tile, metal tile, cement-sand tile Foundation: monolithic tape band

¿Te interesa este plano?

Contáctanos para obtener los planos completos, un presupuesto de construcción o adaptar este diseño a tu terreno y necesidades.

Solicitar más información

Galería de visualizaciones